Estimate your costs based on your location and materials.
Yes! This plan can be customized—contact us for a free quote.

Yes! This plan can be customized—contact us for a free quote.
Optional Foundations are considered modifications so please send us a modification request if you would like a free quote. Thank you! PLEASE NOTE! Any options that are ordered such as RRR or 2x6 conversion will each take 4-7 business days to complete BEFORE the plans are sent. Materials Lists can take up to 14 business days to complete BEFORE plans are sent.
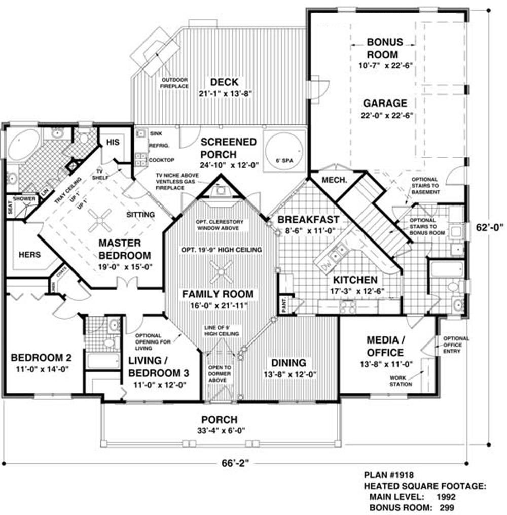
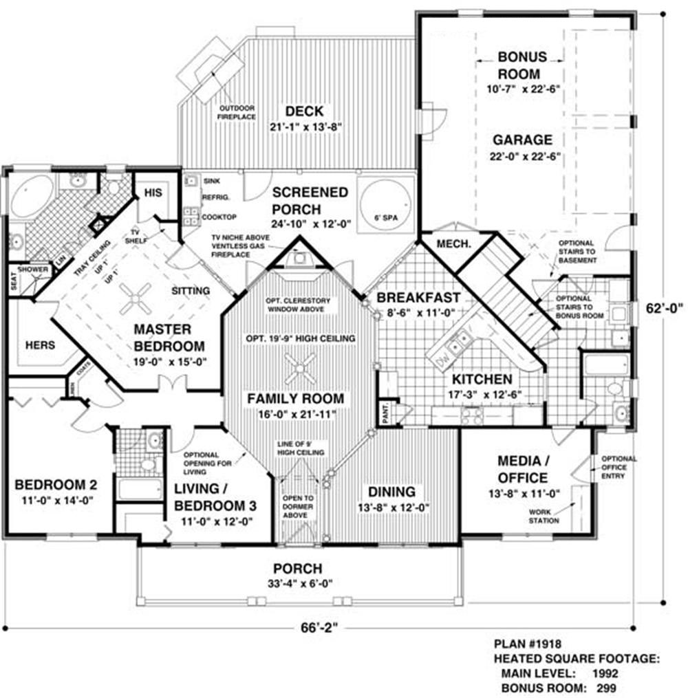
This elegant country porch style home is both classic and contemporary. From the inviting front porch to the screened porch and deck, this home provides dramatic spaces, luxurious appointments, and true flexibility. Its innovative design provides an abundance of living area, flexible multi-purpose rooms, and exciting features, all in an affordable 1992 square feet. The bonus room and optional basement provide areas for future expansion. Just beyond the porch, the entry, is lit by the open dormer above. Directly ahead is a spacious octagonally shaped family room with a 19'-9" high ceiling....
Estimate your costs based on your location and materials.
All sales of house plans, modifications, and other products found on this site are final. No refunds or exchanges can be given once your order has begun the fulfillment process. Please see our Policies for additional information.
All plans offered on ThePlanCollection.com are designed to conform to the local building codes when and where the original plan was drawn.
The homes as shown in photographs and renderings may differ from the actual blueprints. For more detailed information, please review the floor plan images herein carefully.
Estimate your costs based on your location and materials.


