3-Bedroom, 1681 Sq Ft Ranch Plan with Split Master Bedroom

Main image for house plan # 14415

Images/Plans copyrighted by designer. Photos may reflect homeowner modifications.

About House Plan #109-1090

Sq Ft
1681
Sq Ft
Bedrooms
3
Bedrooms
Bathroom
2
Baths
Half Baths
0
Half Baths
Bedrooms
0
Cars
Bedrooms
1
Stories
Bedrooms
55' 8'
Width
Bedrooms
53
Depth
Starting at$1295.00What's included
STEP 1Bedrooms
STEP 2Bedrooms
STEP 3Bedrooms

Subtotal:$0
BedroomsBest Price Guaranteed
Plan Collection

How much will it cost to build?

Estimate your costs based on your location and materials.

Free Cost Instant Estimator

Floor Plans

MAIN FLOOR PLAN
MAIN FLOOR PLAN
Plan Collection

Can I modify this plan?

Yes! This plan can be customized—contact us for a free quote.

Additional Notes from Designer

Optional Foundations are considered modifications so please send us a modification request if you would like a free quote. Thank you! PLEASE NOTE! Any options that are ordered such as RRR or 2x6 conversion will each take 4-7 business days to complete BEFORE the plans are sent. Materials Lists can take up to 14 business days to complete BEFORE plans are sent.

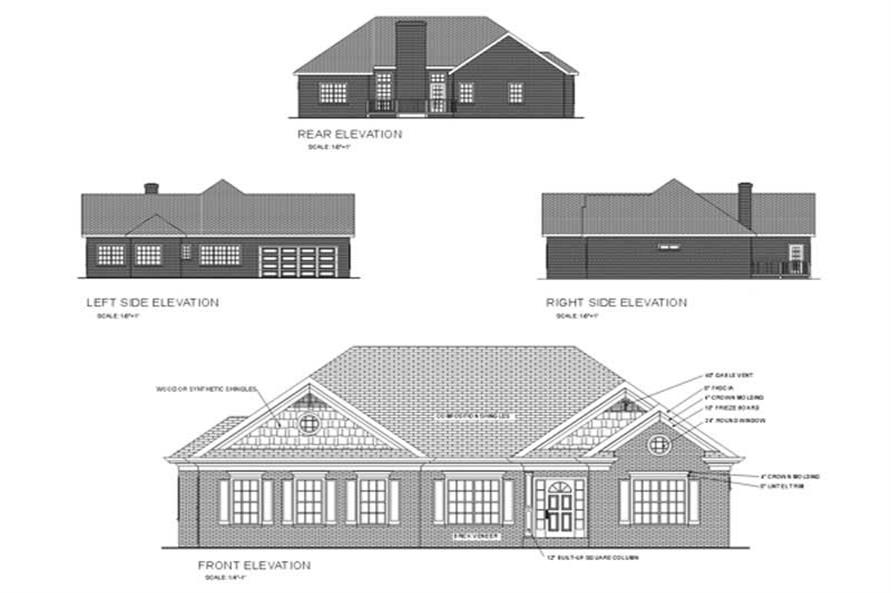
House Plan Description

The entry is protected by a covered porch and features an 11' high ceiling. To the left is the dining room open to the entry and family room, also with an 11' high ceiling. An array of square columns, crowned with a plant shelf, lead to the kitchen and breakfast room. Directly off the breakfast room is the laundry. The dramatic master suite is loaded with amenities such as a double step tray ceiling, direct access to the deck, a sitting room, deluxe bath, and walk-in closet. The unusually spacious secondary bedrooms share the second bath. Unless otherwise noted, the ceilings are 9' high.

Home Details

Summary
Plan #:109-1090
Starting at:$1295.00
Floors:1
Bedrooms:3
Full Baths:2
Half Baths:0
Garage:
Square Footage
Heated Area:1681 Sq. Ft.
First Floor:1681 Sq. Ft.
Unheated Area:
Dimensions
Width:55' 8''
Depth:53' 2''
Architectural Styles
Exterior Wall Material
Vinyl SidingBrickShakes
Roof Pitch
9/12
Special Feature
Dining RoomFamily Room
Garage Type
Side Entry

What’s Included

Most plan sets include the following:

icon text-secondary-400 includedRendering cover page

icon text-secondary-400 includedElevations

icon text-secondary-400 includedFloor plans

icon text-secondary-400 includedFoundation plan

icon text-secondary-400 includedCabinet/interior elevations

icon text-secondary-400 includedRoof plan

icon text-secondary-400 includedSection

icon text-secondary-400 includedConstruction details

icon text-secondary-400 includedIRC code specifications

What’s Not Included

These items are  NOT included:

icon text-secondary-400 includedArchitectural or Engineering Stamp - handled locally if required.

icon text-secondary-400 includedSite Plan - handled locally when required.

icon text-secondary-400 includedMechanical Drawings (location of heating and air equipment and duct work) - your subcontractors handle this.

icon text-secondary-400 includedPlumbing Drawings (drawings showing the actual plumbing pipe sizes and locations) - your subcontractors handle this.

icon text-secondary-400 includedEnergy calculations - handled locally when required.

Related House Plans

Plan Collection
Plan Collection
Plan Collection
Plan#117-1092
Starting at$1295
2091
Sq Ft
1
Story
3
Bed
2.5
Bath
2
Car
Plan Collection
Plan Collection
Plan Collection
Plan#142-1041
Starting at$1345
1300
Sq Ft
1
Story
3
Bed
2
Bath
2
Car
Plan Collection
Plan Collection
Plan Collection
Plan#141-1243
Starting at$1300
1640
Sq Ft
1
Story
3
Bed
2
Bath
2
Car
View All

Other Plans By This Designer

Plan Collection
Plan Collection
Plan Collection
Plan#109-1193
Starting at$1395
2156
Sq Ft
1
Story
3
Bed
3
Bath
3
Car
Plan Collection
Plan Collection
Plan Collection
Plan#109-1010
Starting at$1045
953
Sq Ft
1
Story
2
Bed
1.5
Bath
0
Car
Plan Collection
Plan Collection
Plan Collection
Plan#109-1005
Starting at$1295
1798
Sq Ft
1
Story
3
Bed
2.5
Bath
2
Car