Estimate your costs based on your location and materials.
Yes! This plan can be customized—contact us for a free quote.


Yes! This plan can be customized—contact us for a free quote.
On some plans, Basement Foundations, Walkout Basement Foundations, & 2x6 Conversions could take up to ONE WEEK to produce. Materials Lists could take up to FOUR WEEKS to produce and they will be for the ORIGINAL plan! Any modifications will NOT be reflected on the Materials List. NOTE FROM DESIGNER: If you purchase a CAD, you will automatically receive the unlimited build license - no need to purchase separately!
On floor plan with optional basement foundation, depth of the house is increases to 64'-6" to accommodate the stairs to the basement, which are located toward the rear of house between the master bedroom and the porch. The door to the stairs is in the extended entry hall area, while the storage room as been extended on on the opposite side. Please contact us if you would like to see the floor plan layout with the optional basement foundation. Please note the total unfinished square footage is 763 with the garage.
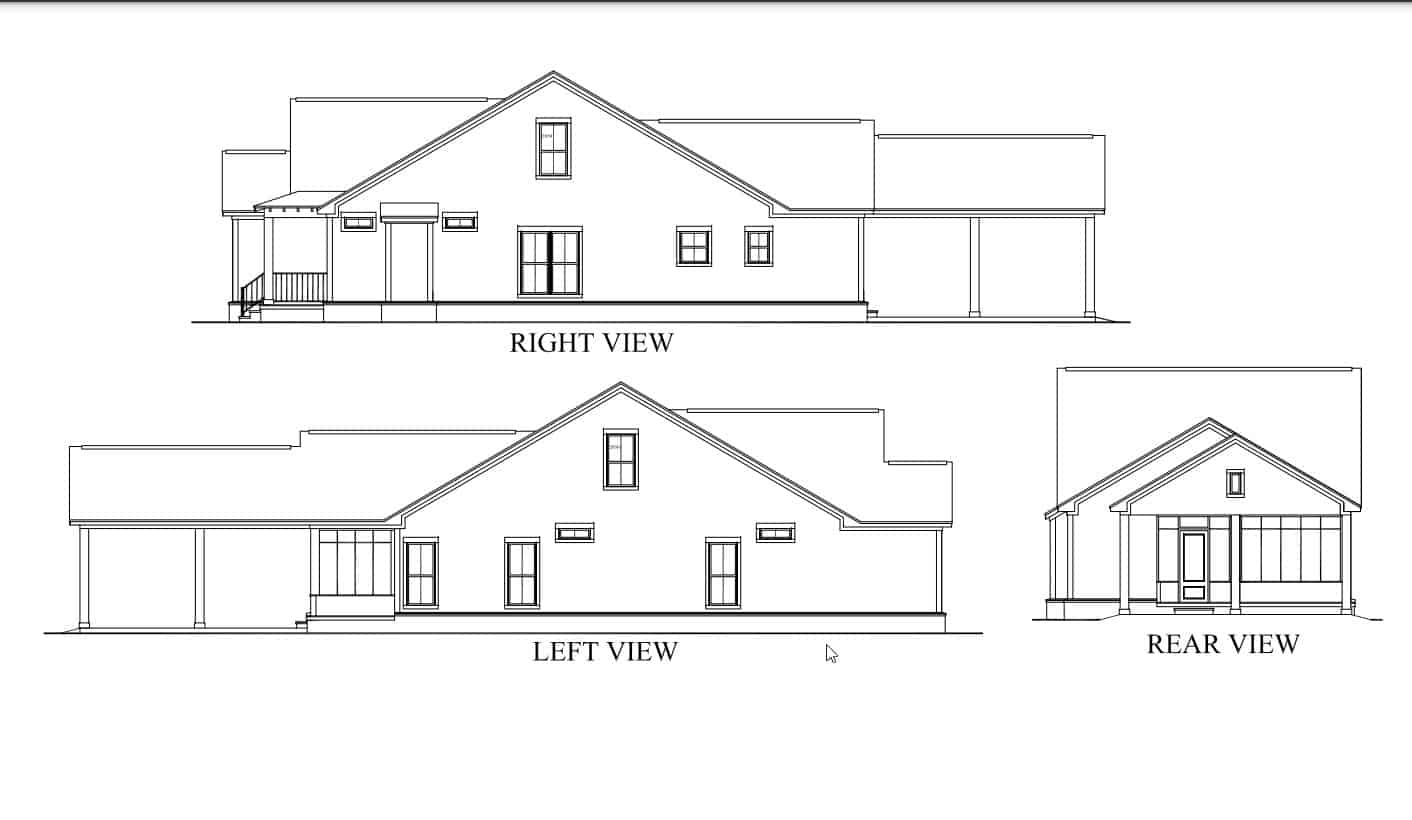
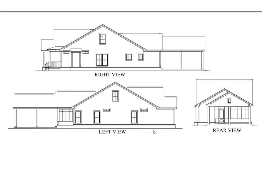
This Craftsman-style home maximizes narrow lots with its open floor plan. The great room features a fireplace and flows into the dining area, kitchen, and screened porch. With 3 bedrooms, the master suite enjoys privacy at the rear with a spacious bath and walk-in closet. An optional carport adds versatility.
Estimate your costs based on your location and materials.
All sales of house plans, modifications, and other products found on this site are final. No refunds or exchanges can be given once your order has begun the fulfillment process. Please see our Policies for additional information.
All plans offered on ThePlanCollection.com are designed to conform to the local building codes when and where the original plan was drawn.
The homes as shown in photographs and renderings may differ from the actual blueprints. For more detailed information, please review the floor plan images herein carefully.
Estimate your costs based on your location and materials.








