Estimate your costs based on your location and materials.
Yes! This plan can be customized—contact us for a free quote.

Yes! This plan can be customized—contact us for a free quote.
Optional Foundations are considered modifications so please send us a modification request if you would like a free quote. Thank you! PLEASE NOTE! Any options that are ordered such as RRR or 2x6 conversion will each take 4-7 business days to complete BEFORE the plans are sent. Materials Lists can take up to 14 business days to complete BEFORE plans are sent.
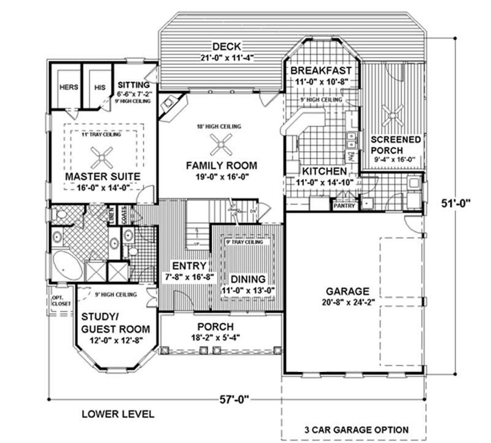
This beautiful Country style home plan with Traditional influences (House Plan #109-1179) has 2253 square feet of living space. The 2 story floor plan includes 4 bedrooms and 3 bathrooms.
With this house plan you're welcomed by an inviting front porch, and greeted by a beautiful leaded glass door leading to the 2-story entry. To the right is an elegant dining room adorned with a tray ceiling. Beyond the stairs is the dramatic family room, accented with a corner fireplace and a window wall with arched transoms. The sumptuous master suite includes a...
Estimate your costs based on your location and materials.
All sales of house plans, modifications, and other products found on this site are final. No refunds or exchanges can be given once your order has begun the fulfillment process. Please see our Policies for additional information.
All plans offered on ThePlanCollection.com are designed to conform to the local building codes when and where the original plan was drawn.
The homes as shown in photographs and renderings may differ from the actual blueprints. For more detailed information, please review the floor plan images herein carefully.
Estimate your costs based on your location and materials.


