Estimate your costs based on your location and materials.
Yes! This plan can be customized—contact us for a free quote.


Yes! This plan can be customized—contact us for a free quote.
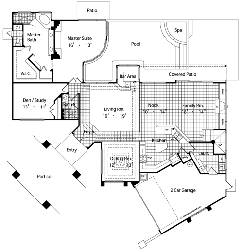
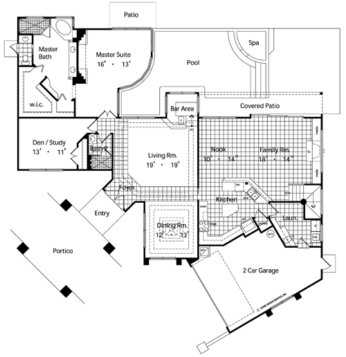
You and your family will fall in love with this luxurious home (Plan #190-1018). With 2887 square feet, 4 bedrooms and 3 full baths, this home is perfect for any growing family. The open floor concept allows for the kitchen to be easily accessible from the family room. The family room has a fireplace and gives access to the patio.
Estimate your costs based on your location and materials.
All sales of house plans, modifications, and other products found on this site are final. No refunds or exchanges can be given once your order has begun the fulfillment process. Please see our Policies for additional information.
All plans offered on ThePlanCollection.com are designed to conform to the local building codes when and where the original plan was drawn.
The homes as shown in photographs and renderings may differ from the actual blueprints. For more detailed information, please review the floor plan images herein carefully.
Estimate your costs based on your location and materials.










