Estimate your costs based on your location and materials.
Yes! This plan can be customized—contact us for a free quote.
Yes! This plan can be customized—contact us for a free quote.
Optional Foundations are considered modifications so please send us a modification request if you would like a free quote. Thank you! PLEASE NOTE! Any options that are ordered such as RRR or 2x6 conversion will each take 4-7 business days to complete BEFORE the plans are sent. Materials Lists can take up to 14 business days to complete BEFORE plans are sent.
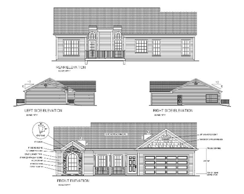
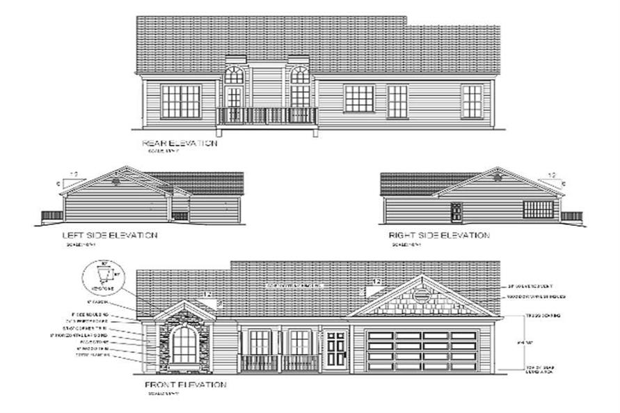
Beyond the front porch and through the entry is the family room with a 12' high ceiling. Its focal point is a fireplace with a TV niche above. To the right is the dining room and kitchen. The angled breakfast bar is open to both the family and dining rooms. Other than the family room, all other ceiling heights are 9'. The master suite features his and hers walk-in closets and a full-featured bath including a whirlpool tub and shower. The secondary bedrooms measuring 11'x12'-8 and 11'x12' share the second bath.
Estimate your costs based on your location and materials.
All sales of house plans, modifications, and other products found on this site are final. No refunds or exchanges can be given once your order has begun the fulfillment process. Please see our Policies for additional information.
All plans offered on ThePlanCollection.com are designed to conform to the local building codes when and where the original plan was drawn.
The homes as shown in photographs and renderings may differ from the actual blueprints. For more detailed information, please review the floor plan images herein carefully.
Estimate your costs based on your location and materials.
