Estimate your costs based on your location and materials.
Yes! This plan can be customized—contact us for a free quote.



Yes! This plan can be customized—contact us for a free quote.
Happy Holidays! The designer's office is closed for the holidays until January 1st. All orders, inquiries, and quotes will be completed when the designer resumes office hours on January 1st.
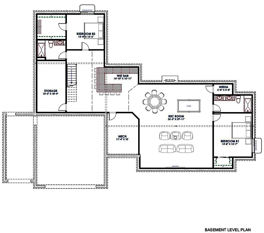
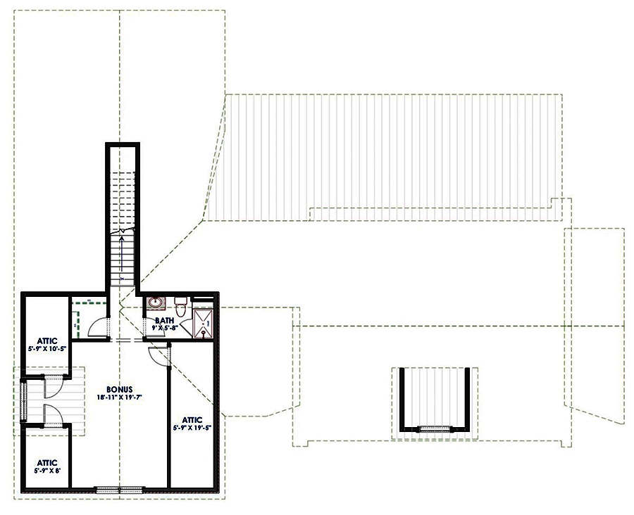
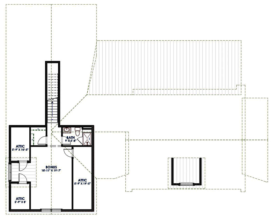
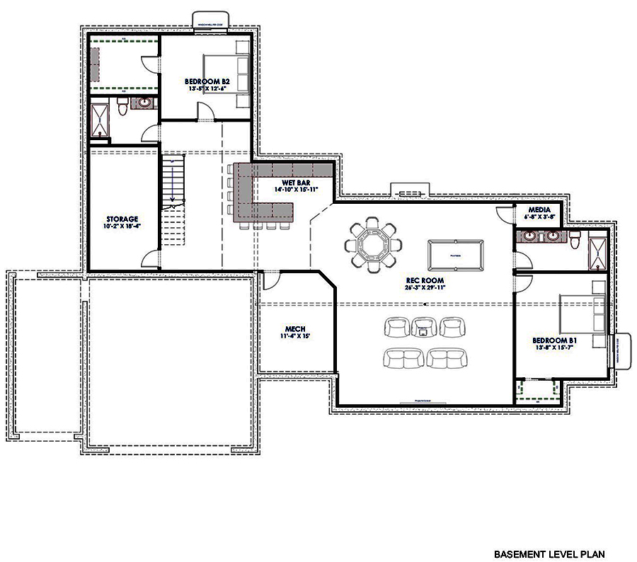
This gorgeous farmhouse style home with Craftsman element (Plan #194-1024) has 2593 square feet of living space. The 1-story floor plan includes 3 bedrooms. Note: There is an option to finish the basement, which would provide additional heated square feet and bedrooms if desired
Estimate your costs based on your location and materials.
All sales of house plans, modifications, and other products found on this site are final. No refunds or exchanges can be given once your order has begun the fulfillment process. Please see our Policies for additional information.
All plans offered on ThePlanCollection.com are designed to conform to the local building codes when and where the original plan was drawn.
The homes as shown in photographs and renderings may differ from the actual blueprints. For more detailed information, please review the floor plan images herein carefully.
Estimate your costs based on your location and materials.












