Estimate your costs based on your location and materials.
Yes! This plan can be customized—contact us for a free quote.

Yes! This plan can be customized—contact us for a free quote.
PLEASE NOTE!! For this designer, The PDF that comes with the PRINT Packages (5 set+PDF and 8 set+PDF) is NOT Modifiable - it is for printing ONLY! PLEASE NOTE!! Optional Foundations (foundations that cost extra money) will take 5-10 business days to complete.
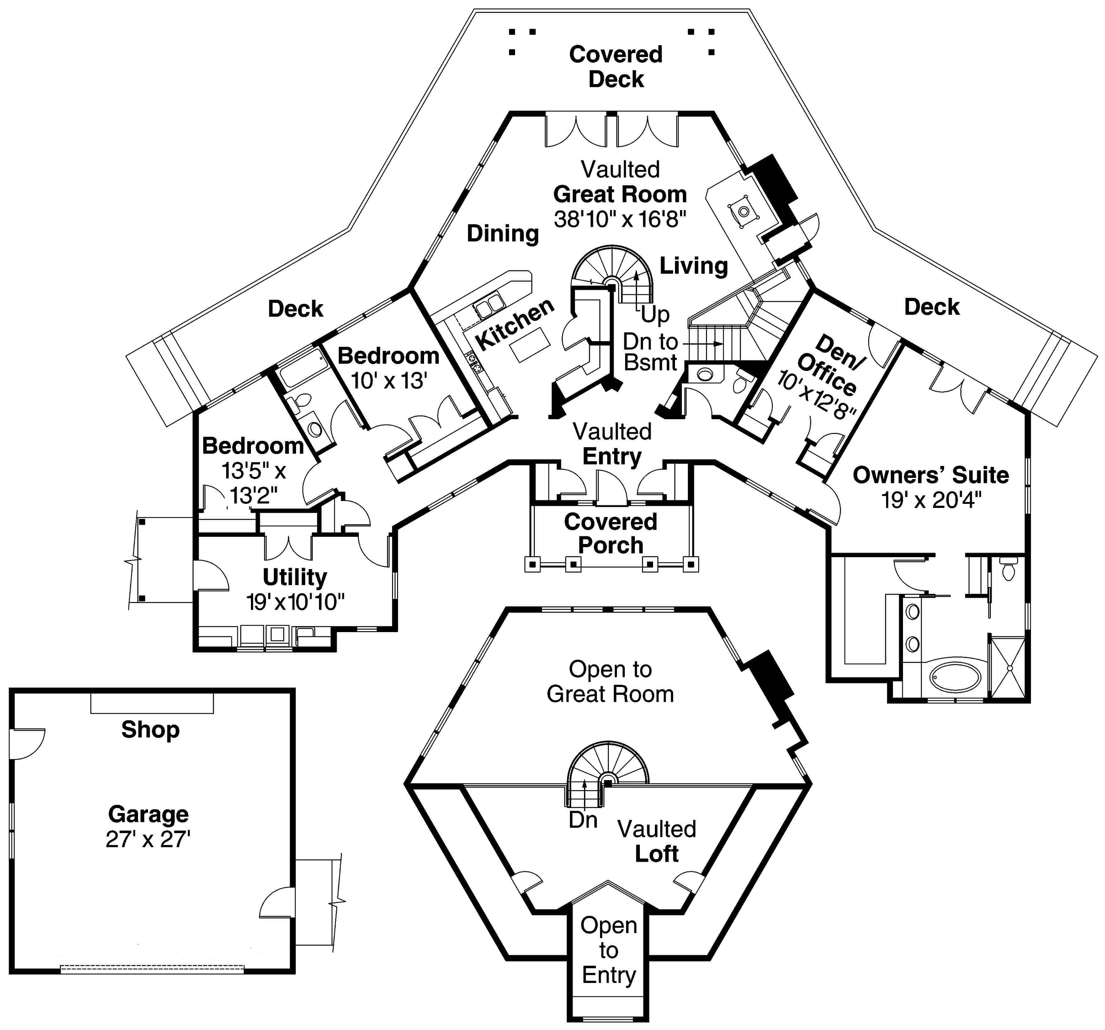
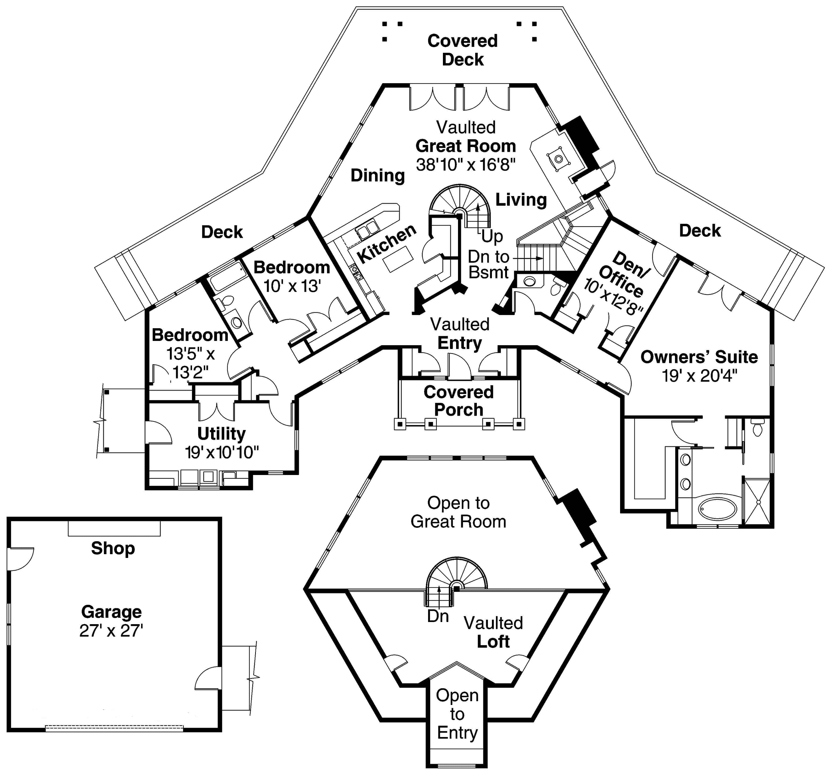
Looking for all the world like a Shingle style home from the curb, this house is actually designed in the shape of a hexagon, with two "wings," one each on the left and right, that contain bedrooms and an office. The central hexagon contains the living spaces.
The vaulted entry comes off the covered front porch and leads to the kitchen on the left and the living room on the right. The entire central hexagon is an open floor plan Great Room that contains living, dining, and kitchen areas with a staircase in the middle leading to a vaulted...
Estimate your costs based on your location and materials.
All sales of house plans, modifications, and other products found on this site are final. No refunds or exchanges can be given once your order has begun the fulfillment process. Please see our Policies for additional information.
All plans offered on ThePlanCollection.com are designed to conform to the local building codes when and where the original plan was drawn.
The homes as shown in photographs and renderings may differ from the actual blueprints. For more detailed information, please review the floor plan images herein carefully.
Estimate your costs based on your location and materials.




