Estimate your costs based on your location and materials.
Yes! This plan can be customized—contact us for a free quote.


Yes! This plan can be customized—contact us for a free quote.
Happy Holidays! The designer's office is closed for the holidays until January 1st. All orders, inquiries, and quotes will be completed when the designer resumes office hours on January 1st.
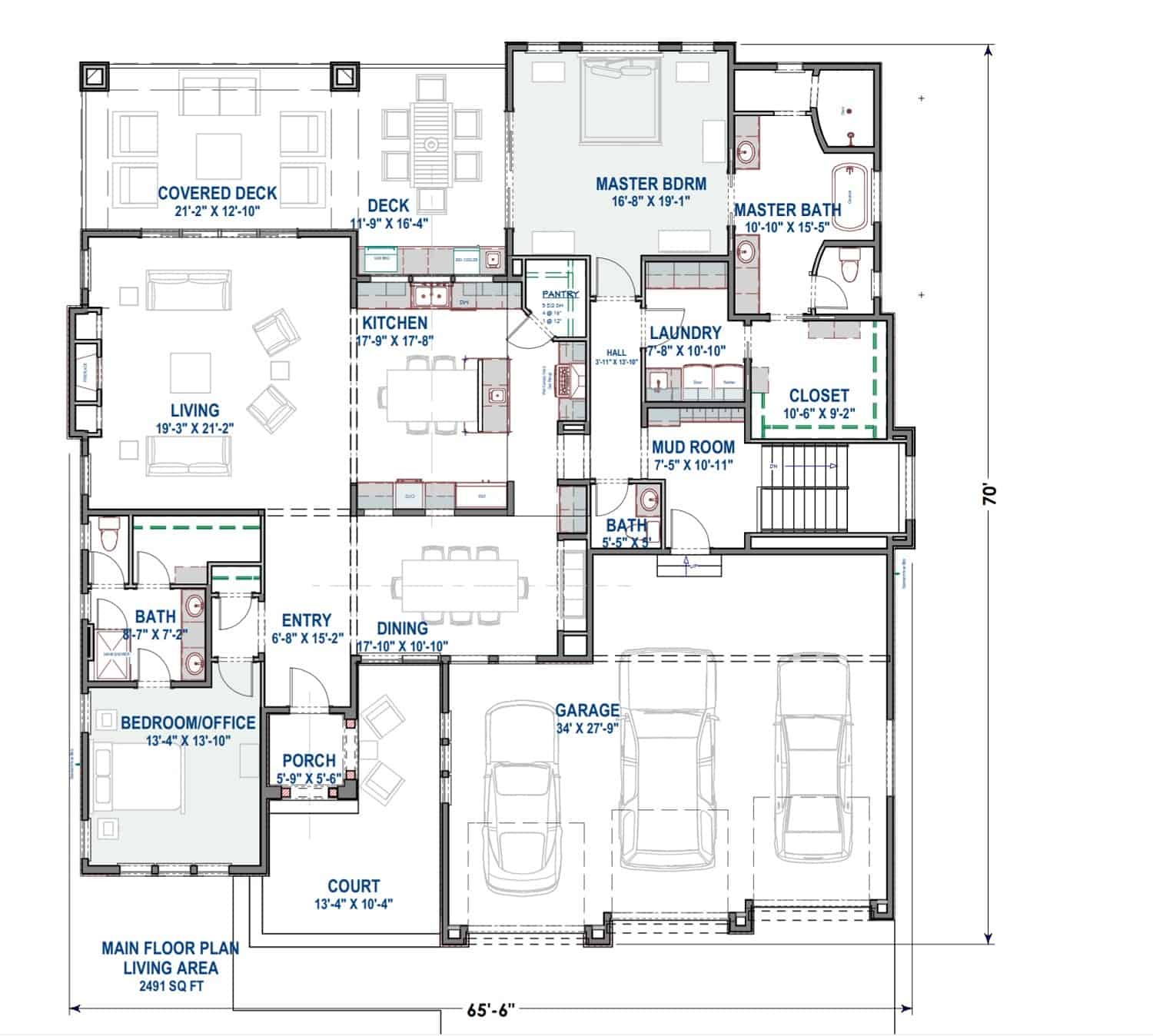
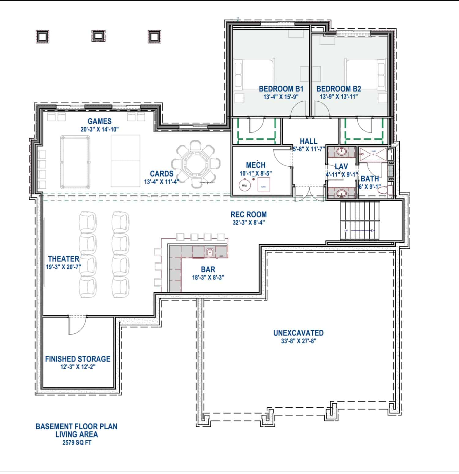
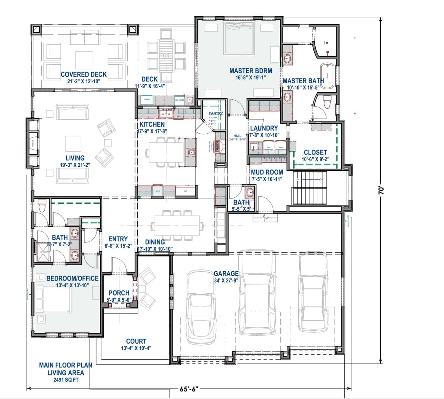
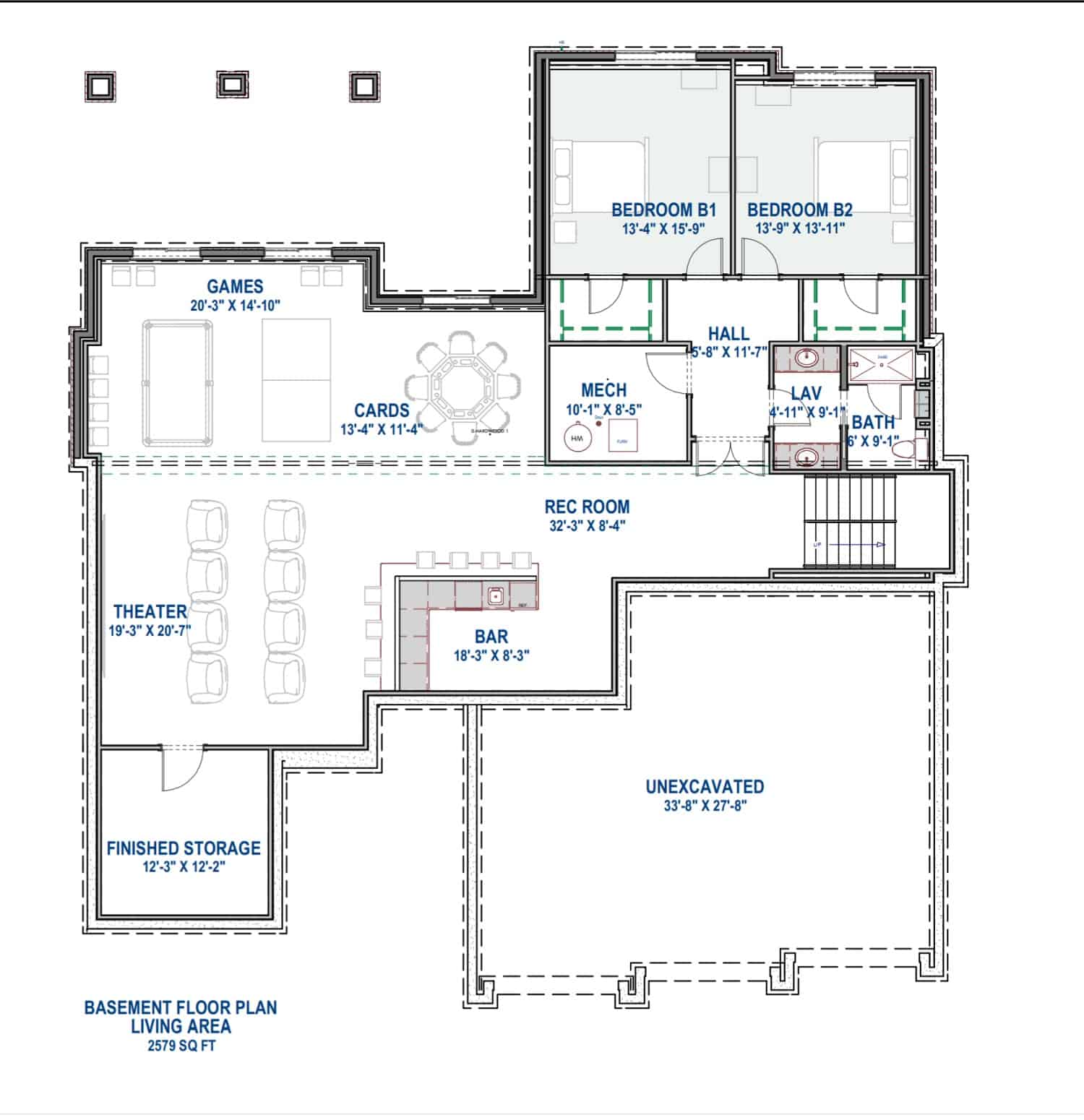
Low-slung, with a 3-car garage and much more room inside than it may appear, this fantastic home offers 2 bedrooms and 2.5 bathrooms on the main level and 2 optional bedrooms (and split-double-vanity bath) on the lower level, which may be finished at a future date. The open floor plan of the Great Room is arranged in an L-shape, and there are many details throughout the home that will appeal to the discerning home buyer.
This appealing Prairie style home with Ranch influences (Plan #194-1014) has 2560–5025 square feet of living space. The 1 story floor plan...
Estimate your costs based on your location and materials.
All sales of house plans, modifications, and other products found on this site are final. No refunds or exchanges can be given once your order has begun the fulfillment process. Please see our Policies for additional information.
All plans offered on ThePlanCollection.com are designed to conform to the local building codes when and where the original plan was drawn.
The homes as shown in photographs and renderings may differ from the actual blueprints. For more detailed information, please review the floor plan images herein carefully.
Estimate your costs based on your location and materials.








