Estimate your costs based on your location and materials.
Yes! This plan can be customized—contact us for a free quote.

Yes! This plan can be customized—contact us for a free quote.
PLEASE NOTE: Not all plans from this designer can be modified! Please check before sending in a mod request. Thank you!
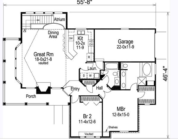
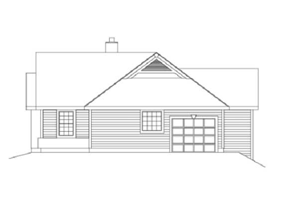
This pleasing Country style home with Cottage expressions is like a storybook home, with its corner wrap-around porch, stacked-stone chimney and partial siding, and vaulted Great Room with large bay window. The atrium at the rear of the house has large windows for an awesome view and stairs that lead down to the walkout/daylight basement. The basement is unfinished, but you can finish it as you like if desired. The home (Plan #138-1003) has 1922 square feet of living space., and the 1-story floor plan includes 2 bedrooms.
Estimate your costs based on your location and materials.
All sales of house plans, modifications, and other products found on this site are final. No refunds or exchanges can be given once your order has begun the fulfillment process. Please see our Policies for additional information.
All plans offered on ThePlanCollection.com are designed to conform to the local building codes when and where the original plan was drawn.
The homes as shown in photographs and renderings may differ from the actual blueprints. For more detailed information, please review the floor plan images herein carefully.
Estimate your costs based on your location and materials.




