Estimate your costs based on your location and materials.
Yes! This plan can be customized—contact us for a free quote.
Yes! This plan can be customized—contact us for a free quote.
Optional Foundations are considered modifications so please send us a modification request if you would like a free quote. Thank you! PLEASE NOTE! Any options that are ordered such as RRR or 2x6 conversion will each take 4-7 business days to complete BEFORE the plans are sent. Materials Lists can take up to 14 business days to complete BEFORE plans are sent.
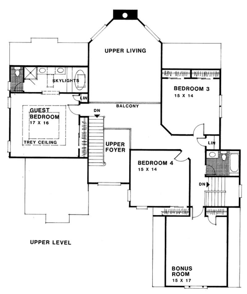
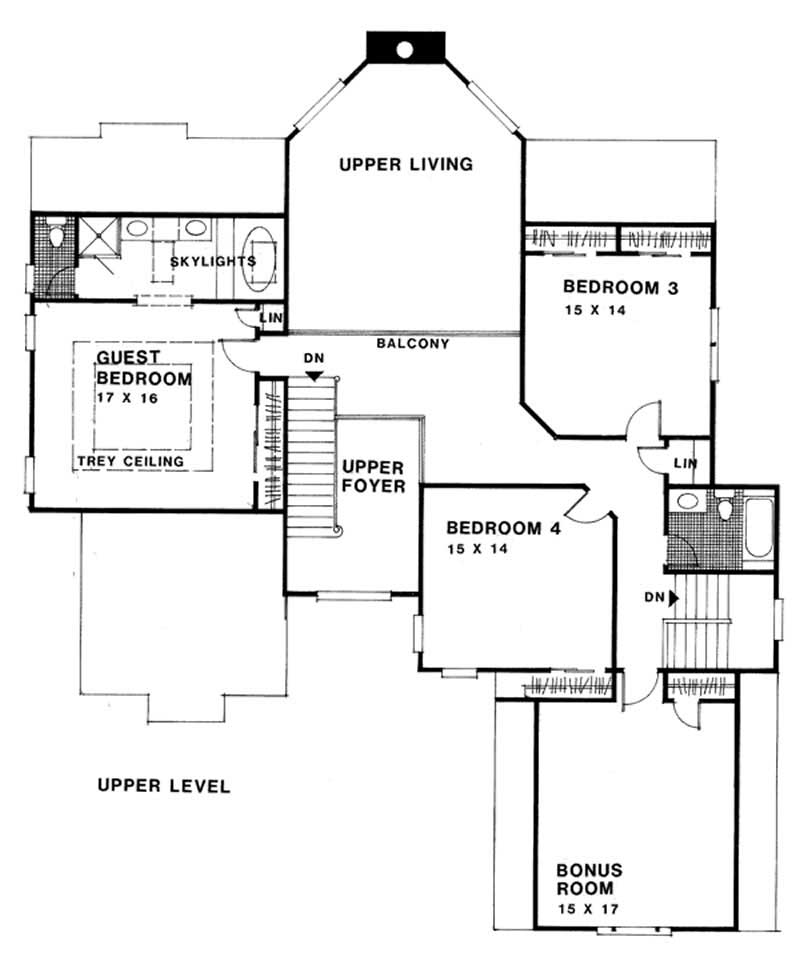
A dramatic 10'x13' two-story foyer is the entrance to this European stucco and stacked stone exterior. This spacious home offers four bedrooms, a bonus room and 3-1/2 baths. The downstairs features a 15'x14' parlor with fireplace and vaulted ceiling. The master suite, located on the lower level, includes a spacious master bathroom with separate shower and garden tub. A large walk-in closet is accessible from the dressing area. The gourmet kitchen includes a center work island and a 15'x11' breakfast area with double French doors leading onto the 41'x14' deck. The deck is also accessible from...
Estimate your costs based on your location and materials.
All sales of house plans, modifications, and other products found on this site are final. No refunds or exchanges can be given once your order has begun the fulfillment process. Please see our Policies for additional information.
All plans offered on ThePlanCollection.com are designed to conform to the local building codes when and where the original plan was drawn.
The homes as shown in photographs and renderings may differ from the actual blueprints. For more detailed information, please review the floor plan images herein carefully.
Estimate your costs based on your location and materials.
