4-Bedroom, 3683 Sq Ft European Plan with Covered Front Porch

Main image for house plan # 14504

Images/Plans copyrighted by designer. Photos may reflect homeowner modifications.

About House Plan #109-1038

Sq Ft
3683
Sq Ft
Bedrooms
4
Bedrooms
Bathroom
4
Baths
Half Baths
0
Half Baths
Bedrooms
0
Cars
Bedrooms
2
Stories
Bedrooms
85' 0'
Width
Bedrooms
46
Depth
Starting at$1695.00What's included
STEP 1Bedrooms
STEP 2Bedrooms
STEP 3Bedrooms

Subtotal:$0
BedroomsBest Price Guaranteed
Plan Collection

How much will it cost to build?

Estimate your costs based on your location and materials.

Free Cost Instant Estimator

Floor Plans

MAIN FLOOR PLAN
MAIN FLOOR PLAN
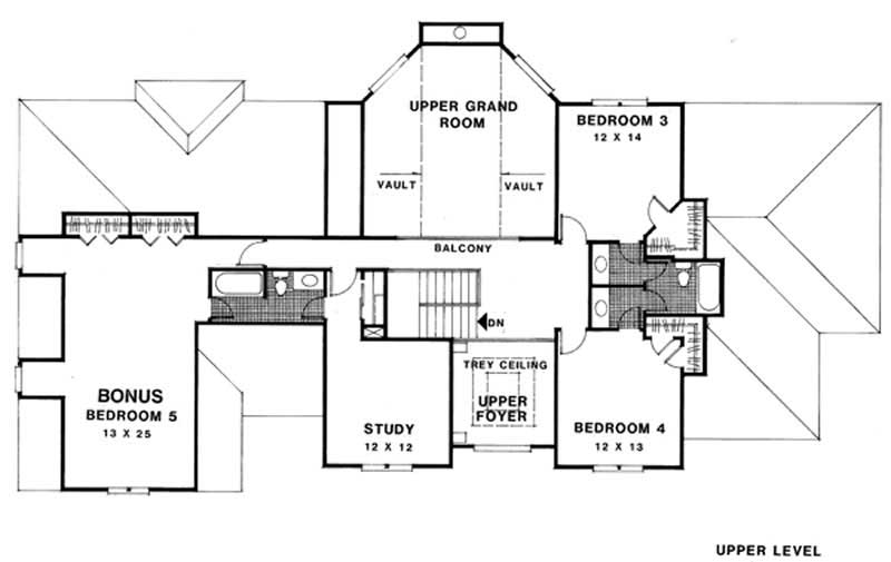
SECOND FLOOR PLAN
SECOND FLOOR PLAN
Plan Collection

Can I modify this plan?

Yes! This plan can be customized—contact us for a free quote.

Additional Notes from Designer

Optional Foundations are considered modifications so please send us a modification request if you would like a free quote. Thank you! PLEASE NOTE! Any options that are ordered such as RRR or 2x6 conversion will each take 4-7 business days to complete BEFORE the plans are sent. Materials Lists can take up to 14 business days to complete BEFORE plans are sent.

House Plan Description

This stately European traditional home with stucco exterior has 3,271 sq. ft. of living space plus a 412 sq. ft. bonus room. The dramatic 10'x 10' two-story foyer is flanked by a 12'x 12' dining room on the left and a 12'x 12' parlor on the right. Measuring 19'x 22', the grand room features two sets of double French doors opening onto a large deck. The deck is also accessible from the 15'x 14' master bedroom. Highlighting the master bedroom is a see-through fireplace. Two large his-and-hers walk-in closets provide maximum closet space. Also located on the main level is a 13'x 13' bedroom...

Home Details

Summary
Plan #:109-1038
Starting at:$1695.00
Floors:2
Bedrooms:4
Full Baths:4
Half Baths:0
Garage:
Square Footage
Heated Area:3683 Sq. Ft.
First Floor:2332 Sq. Ft.
Second Floor:939 Sq. Ft.
Unheated Area:
Dimensions
Architectural Styles
Exterior Wall Material
Stucco
Roof Pitch
12/12
Ceiling Height
9 Foot Ceiling8 Foot Ceiling
Special Feature
FireplaceDining RoomBonus RoomMain Level Laundry
Exterior Wall Framing
2x4

What’s Included

Most plan sets include the following:

icon text-secondary-400 includedRendering cover page

icon text-secondary-400 includedElevations

icon text-secondary-400 includedFloor plans

icon text-secondary-400 includedFoundation plan

icon text-secondary-400 includedCabinet/interior elevations

icon text-secondary-400 includedRoof plan

icon text-secondary-400 includedSection

icon text-secondary-400 includedConstruction details

icon text-secondary-400 includedIRC code specifications

What’s Not Included

These items are  NOT included:

icon text-secondary-400 includedArchitectural or Engineering Stamp - handled locally if required.

icon text-secondary-400 includedSite Plan - handled locally when required.

icon text-secondary-400 includedMechanical Drawings (location of heating and air equipment and duct work) - your subcontractors handle this.

icon text-secondary-400 includedPlumbing Drawings (drawings showing the actual plumbing pipe sizes and locations) - your subcontractors handle this.

icon text-secondary-400 includedEnergy calculations - handled locally when required.

Related House Plans

Plan Collection
Plan Collection
Plan Collection
Plan#161-1017
Starting at$3400
4587
Sq Ft
2
Story
4
Bed
4.5
Bath
4
Car
Plan Collection
Plan Collection
Plan Collection
Plan#106-1292
Starting at$1695
3302
Sq Ft
2
Story
4
Bed
4.5
Bath
5
Car
Plan Collection
Plan Collection
Plan Collection
Plan#142-1140
Starting at$1645
3360
Sq Ft
2
Story
4
Bed
4.5
Bath
3
Car
View All

Other Plans By This Designer

Plan Collection
Plan Collection
Plan Collection
Plan#109-1193
Starting at$1395
2156
Sq Ft
1
Story
3
Bed
3
Bath
3
Car
Plan Collection
Plan Collection
Plan Collection
Plan#109-1010
Starting at$1045
953
Sq Ft
1
Story
2
Bed
1.5
Bath
0
Car
Plan Collection
Plan Collection
Plan Collection
Plan#109-1005
Starting at$1295
1798
Sq Ft
1
Story
3
Bed
2.5
Bath
2
Car