4-Bedroom, 3052 Sq Ft Colonial Plan with Kitchen Island

Main image for house plan # 14495

Images/Plans copyrighted by designer. Photos may reflect homeowner modifications.

About House Plan #109-1151

Sq Ft
3052
Sq Ft
Bedrooms
4
Bedrooms
Bathroom
3
Baths
Half Baths
0
Half Baths
Bedrooms
2
Cars
Bedrooms
2
Stories
Bedrooms
60' 0'
Width
Bedrooms
38
Depth
Starting at$1595.00What's included
STEP 1Bedrooms
STEP 2Bedrooms
STEP 3Bedrooms

Subtotal:$0
BedroomsBest Price Guaranteed
Plan Collection

How much will it cost to build?

Estimate your costs based on your location and materials.

Free Cost Instant Estimator

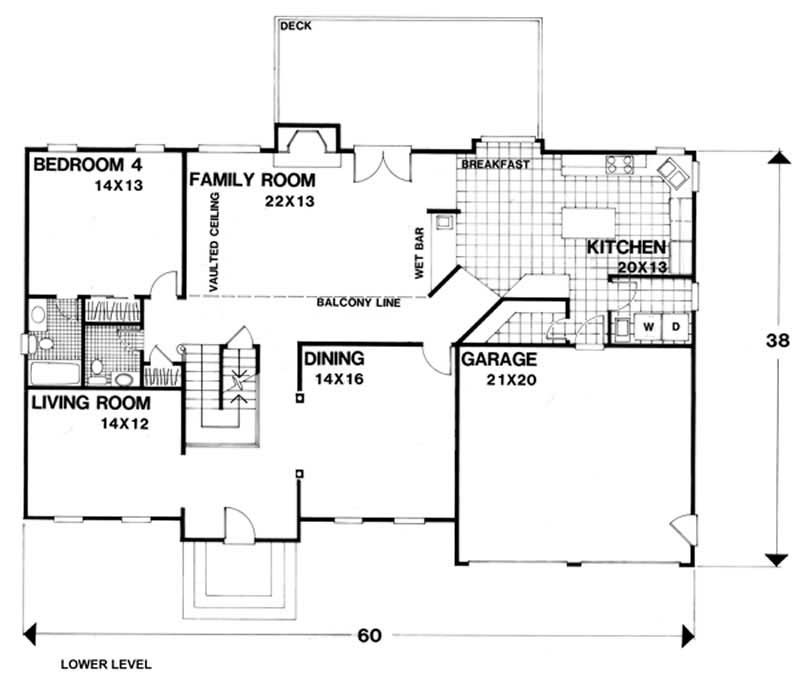
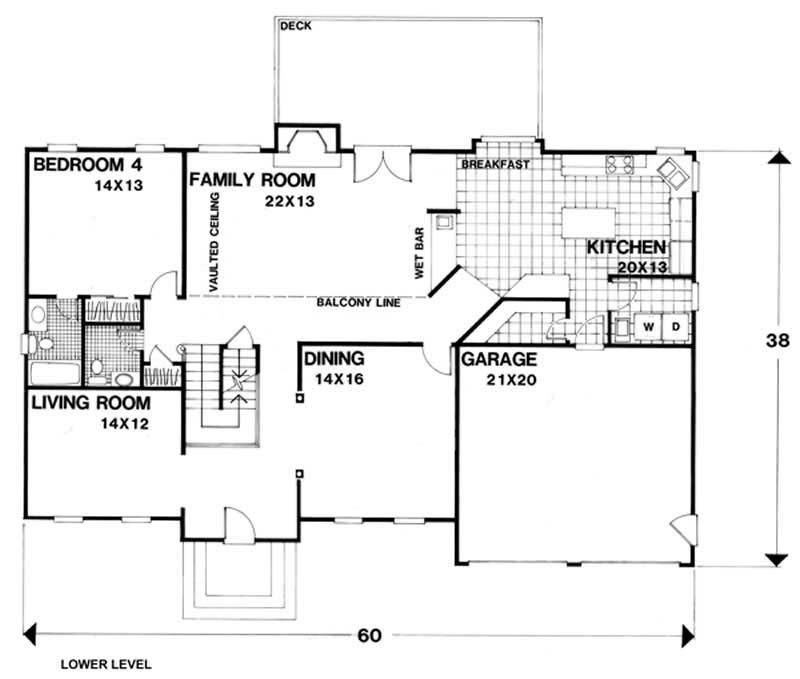
Floor Plans

MAIN FLOOR PLAN
MAIN FLOOR PLAN
SECOND FLOOR PLAN
SECOND FLOOR PLAN
Plan Collection

Can I modify this plan?

Yes! This plan can be customized—contact us for a free quote.

Additional Notes from Designer

Optional Foundations are considered modifications so please send us a modification request if you would like a free quote. Thank you! PLEASE NOTE! Any options that are ordered such as RRR or 2x6 conversion will each take 4-7 business days to complete BEFORE the plans are sent. Materials Lists can take up to 14 business days to complete BEFORE plans are sent.

House Plan Description

This elegant traditional stucco 1-1/2 story home features four bedrooms, one of which is located on the lower level. The floorplan is formal, having both a 14'x12' living room and a 22'x13' family room (with fireplace). In the spacious gourmet kitchen, counter and cabinet space abounds. The sunny breakfast nook provides an informal dining setting while the 14'x16' dining room is perfect for more formal entertaining. The plant bridge, overhead between the family room and breakfast room, is a delightful decorators touch.

Home Details

Summary
Plan #:109-1151
Starting at:$1595.00
Floors:2
Bedrooms:4
Full Baths:3
Half Baths:0
Garage:
Square Footage
Heated Area:3052 Sq. Ft.
First Floor:1759 Sq. Ft.
Second Floor:1293 Sq. Ft.
Unheated Area:
Dimensions
Architectural Styles
Exterior Wall Material
Stucco
Roof Pitch
10/12
Ceiling Height
9 Foot Ceiling8 Foot Ceiling
Special Feature
FireplaceDining RoomFamily Room
Garage Type
Attached Garage
Exterior Wall Framing
2x4

What’s Included

Most plan sets include the following:

icon text-secondary-400 includedRendering cover page

icon text-secondary-400 includedElevations

icon text-secondary-400 includedFloor plans

icon text-secondary-400 includedFoundation plan

icon text-secondary-400 includedCabinet/interior elevations

icon text-secondary-400 includedRoof plan

icon text-secondary-400 includedSection

icon text-secondary-400 includedConstruction details

icon text-secondary-400 includedIRC code specifications

What’s Not Included

These items are  NOT included:

icon text-secondary-400 includedArchitectural or Engineering Stamp - handled locally if required.

icon text-secondary-400 includedSite Plan - handled locally when required.

icon text-secondary-400 includedMechanical Drawings (location of heating and air equipment and duct work) - your subcontractors handle this.

icon text-secondary-400 includedPlumbing Drawings (drawings showing the actual plumbing pipe sizes and locations) - your subcontractors handle this.

icon text-secondary-400 includedEnergy calculations - handled locally when required.

Related House Plans

Plan Collection
Plan Collection
Plan Collection
Plan#141-1287
Starting at$1700
3000
Sq Ft
2
Story
4
Bed
3.5
Bath
3
Car
Plan Collection
Plan Collection
Plan Collection
Plan#178-1034
Starting at$1225
3270
Sq Ft
2
Story
4
Bed
3.5
Bath
3
Car
Plan Collection
Plan Collection
Plan Collection
Plan#102-1026
Starting at$1300
2750
Sq Ft
2
Story
4
Bed
3.5
Bath
2
Car
View All

Other Plans By This Designer

Plan Collection
Plan Collection
Plan Collection
Plan#109-1193
Starting at$1395
2156
Sq Ft
1
Story
3
Bed
3
Bath
3
Car
Plan Collection
Plan Collection
Plan Collection
Plan#109-1010
Starting at$1045
953
Sq Ft
1
Story
2
Bed
1.5
Bath
0
Car
Plan Collection
Plan Collection
Plan Collection
Plan#109-1005
Starting at$1295
1798
Sq Ft
1
Story
3
Bed
2.5
Bath
2
Car