Estimate your costs based on your location and materials.
Yes! This plan can be customized—contact us for a free quote.



Yes! This plan can be customized—contact us for a free quote.
Please Note: There might be a 4-5 day delay in getting the sales orders out due to updates being made to the designer's plans.
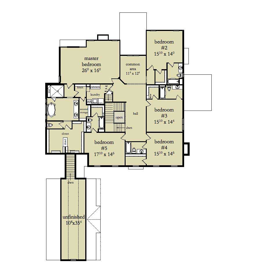
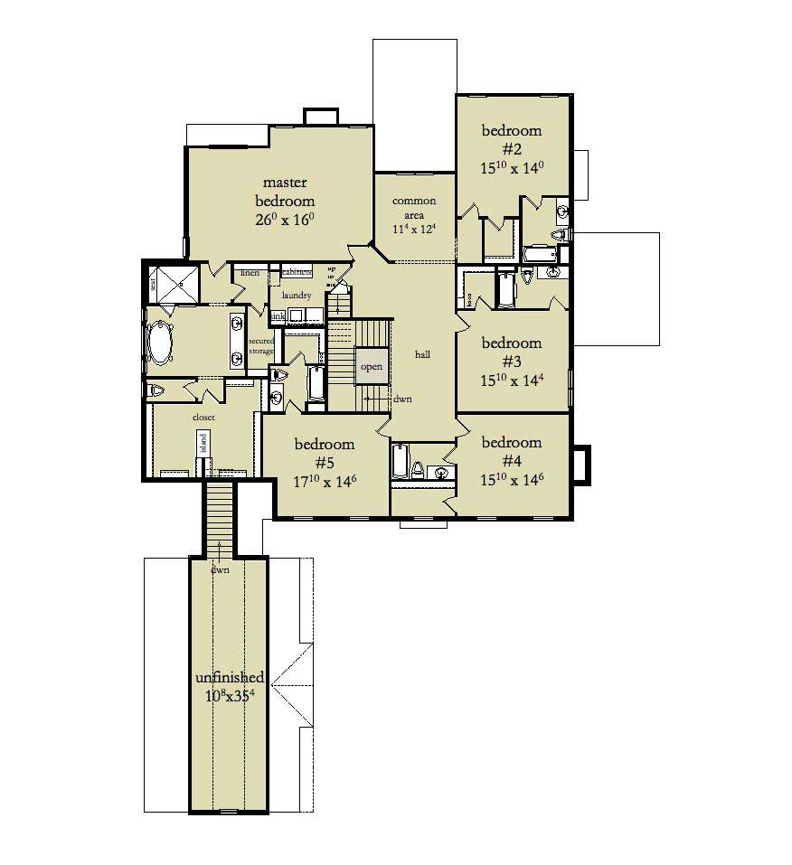
This traditional, colonial style home is loaded with charm! It has brick on 4 sides, 3 chimneys, and an attached 3 car garage. The back has a large deck and covered porch for enjoying the outside. On the inside, the large foyer welcomes you with a dining room on the left and parlor on the right. The library contains several built-ins to house a book collection and adjoins the sun room / solarium with beautiful windows on all sides. The hallways are wide and open. The oversized kitchen is open to the keeping room and breakfast and is perfect for cooking meals for a large family or guests....
Estimate your costs based on your location and materials.
All sales of house plans, modifications, and other products found on this site are final. No refunds or exchanges can be given once your order has begun the fulfillment process. Please see our Policies for additional information.
All plans offered on ThePlanCollection.com are designed to conform to the local building codes when and where the original plan was drawn.
The homes as shown in photographs and renderings may differ from the actual blueprints. For more detailed information, please review the floor plan images herein carefully.
Estimate your costs based on your location and materials.






















































