Estimate your costs based on your location and materials.
Yes! This plan can be customized—contact us for a free quote.


Yes! This plan can be customized—contact us for a free quote.
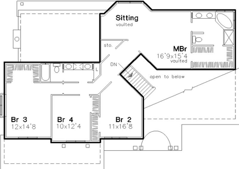
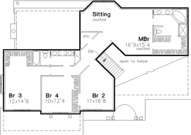
From the covered front porch with columns supporting a round copper roof, guests enter to an interesting view of an angled staircase. To the right of the entry is a vaulted living room with transom windows and half-walls with column dividers. The formal dining room is just beyond another pair of half-walls with columns. The angled kitchen features a spacious walk-in pantry and overlooks a diamond-shaped breakfast room and vaulted family room with fireplace. A main-floor den has private access to a 3/4 bath to accommodate overnight guests or in-laws. There are four bedrooms and two full baths...
Estimate your costs based on your location and materials.
All sales of house plans, modifications, and other products found on this site are final. No refunds or exchanges can be given once your order has begun the fulfillment process. Please see our Policies for additional information.
All plans offered on ThePlanCollection.com are designed to conform to the local building codes when and where the original plan was drawn.
The homes as shown in photographs and renderings may differ from the actual blueprints. For more detailed information, please review the floor plan images herein carefully.
Estimate your costs based on your location and materials.


