Estimate your costs based on your location and materials.
Yes! This plan can be customized—contact us for a free quote.


Yes! This plan can be customized—contact us for a free quote.
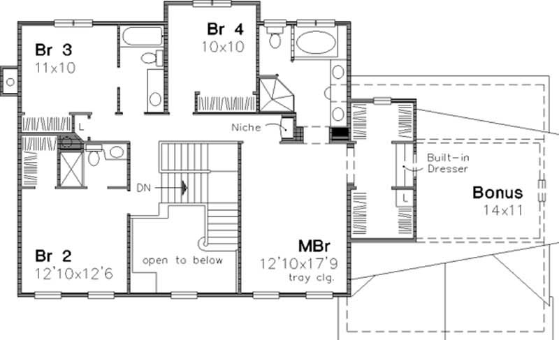
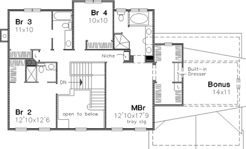
The formal living and dining rooms face the front while the family room with fireplace, breakfast bay and island kitchen overlook the rear deck and yard. The stairs split halfway and serve the entry way to the front and the informal living areas to the back, saving steps and adding interest. The main floor also offers an optional swing suite behind the garage for guests or in-laws. The upper floor houses four bedrooms and three full baths. The master bedroom features a tray ceiling, dual walk-in closets flanking a built-in dresser and a private bath with separate tub and shower.
Estimate your costs based on your location and materials.
All sales of house plans, modifications, and other products found on this site are final. No refunds or exchanges can be given once your order has begun the fulfillment process. Please see our Policies for additional information.
All plans offered on ThePlanCollection.com are designed to conform to the local building codes when and where the original plan was drawn.
The homes as shown in photographs and renderings may differ from the actual blueprints. For more detailed information, please review the floor plan images herein carefully.
Estimate your costs based on your location and materials.


