Estimate your costs based on your location and materials.
Yes! This plan can be customized—contact us for a free quote.


Yes! This plan can be customized—contact us for a free quote.
For this designer, if you choose optional features such as but not limited to: 2x6 exterior walls, reverse or optional basement, the designer will need an additional 2-5 business days to adjust the plan accordingly. Please keep this in mind when choosing your shipping option. if you would like Express or Priority shipping, the designer will ship the plan to you using the method you choose but you will still have the 2-5 business day waiting period BEFORE they ship! This designer does not offer Framing. Please feel free to contact us with any questions!
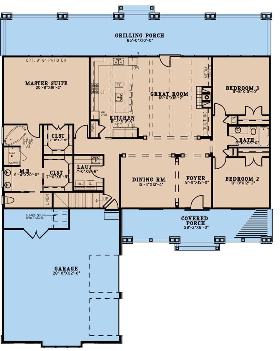
This Single Family Contemporary Traditional Style House Plan has 2416 square feet, 3 bedrooms, and 3 bathrooms.
This splendid Contemporary Traditional style home is sure to snatch your attention. Spanning the full length of the home, this charming front covered porch featuring stately columns, will surely be the place to relax in the evenings. The eye-catching 1-story floor plan has 2416 square feet of fully conditioned living space and features special amenities that include:
• Fireplace in the Great Room
• Laundry room with sink
• Walk-in kitchen pantry
• Spacious walk-in closets
• Lots of...
Estimate your costs based on your location and materials.
All sales of house plans, modifications, and other products found on this site are final. No refunds or exchanges can be given once your order has begun the fulfillment process. Please see our Policies for additional information.
All plans offered on ThePlanCollection.com are designed to conform to the local building codes when and where the original plan was drawn.
The homes as shown in photographs and renderings may differ from the actual blueprints. For more detailed information, please review the floor plan images herein carefully.
Estimate your costs based on your location and materials.





