Estimate your costs based on your location and materials.
Yes! This plan can be customized—contact us for a free quote.


Yes! This plan can be customized—contact us for a free quote.
For this designer, if you choose optional features such as but not limited to: 2x6 exterior walls, reverse or optional basement, the designer will need an additional 2-5 business days to adjust the plan accordingly. Please keep this in mind when choosing your shipping option. if you would like Express or Priority shipping, the designer will ship the plan to you using the method you choose but you will still have the 2-5 business day waiting period BEFORE they ship! This designer does not offer Framing. Please feel free to contact us with any questions!
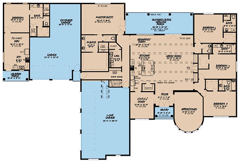
This stunning French country manor has everything you need and more. With 6 bedrooms, 6.5 baths, and 5106 sq ft of living space, this home is perfect for a large family or for hosting guests. The formal dining room is perfect for elegant occasions, while the huge Great Room with its timber beams and access to the rear porch is great for gatherings of all sizes. The open-concept kitchen features an oversized kitchen island, breakfast room, and walk-in pantry. There is even a separate in-law apartment with its own private access and kitchen. And don’t forget the master suite with its...
Estimate your costs based on your location and materials.
All sales of house plans, modifications, and other products found on this site are final. No refunds or exchanges can be given once your order has begun the fulfillment process. Please see our Policies for additional information.
All plans offered on ThePlanCollection.com are designed to conform to the local building codes when and where the original plan was drawn.
The homes as shown in photographs and renderings may differ from the actual blueprints. For more detailed information, please review the floor plan images herein carefully.
Estimate your costs based on your location and materials.



