Estimate your costs based on your location and materials.
Yes! This plan can be customized—contact us for a free quote.



Yes! This plan can be customized—contact us for a free quote.
Please Note: There might be a 4-5 day delay in getting the sales orders out due to updates being made to the designer's plans.
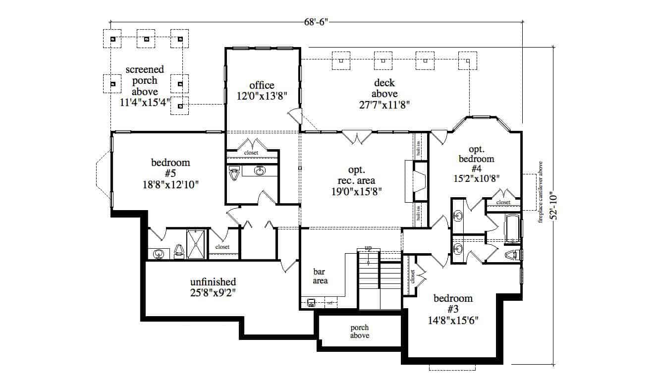
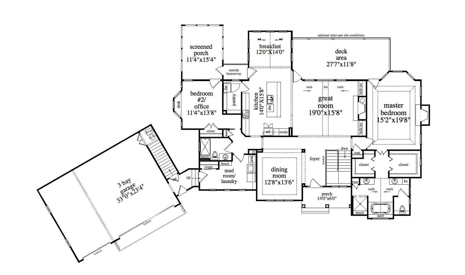
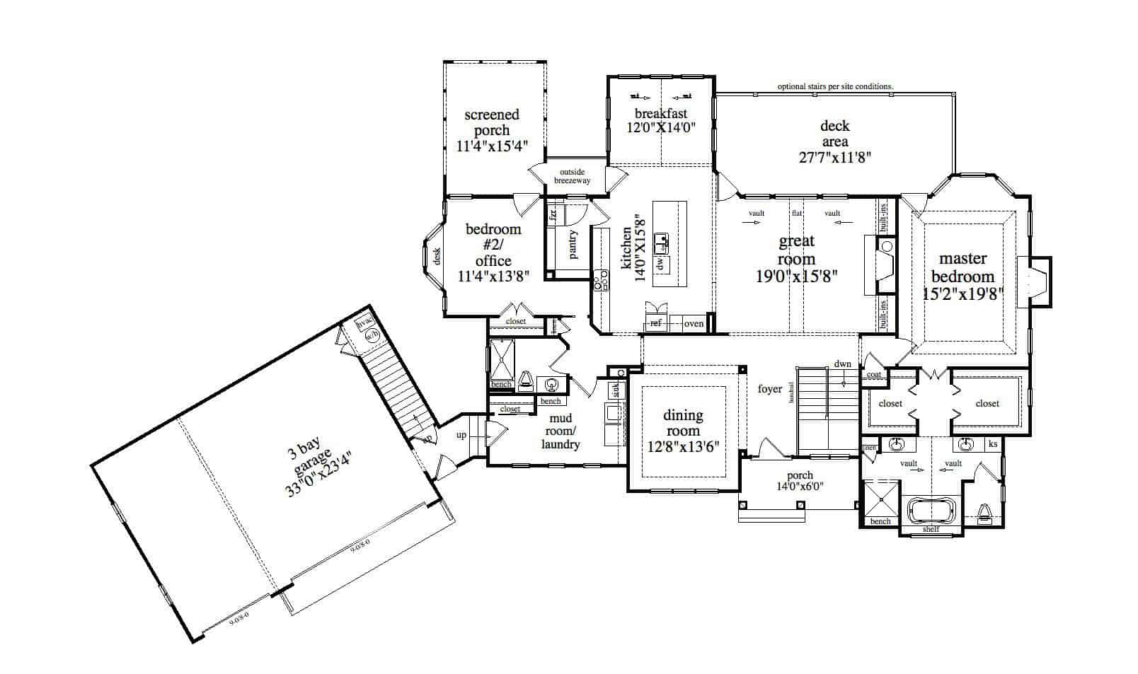
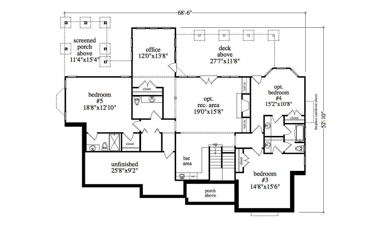
This perfect Ranch-Country home design offers a beautiful exterior and an interior floor plan that is stylish and suitable for today’s families’ lifestyles. The forwarded gables added by the vertical sidings and stately columns in front create a magnificent house design. This remarkable home's 1-story floor plan has 2339 square feet of heated and cooled living space with a 2031-square-foot basement to be developed at your option.
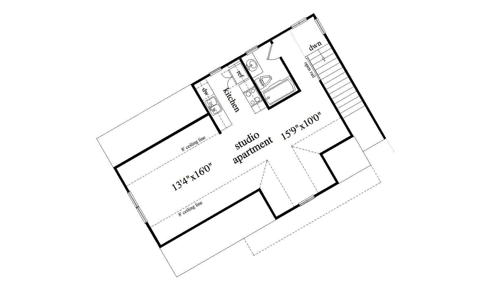
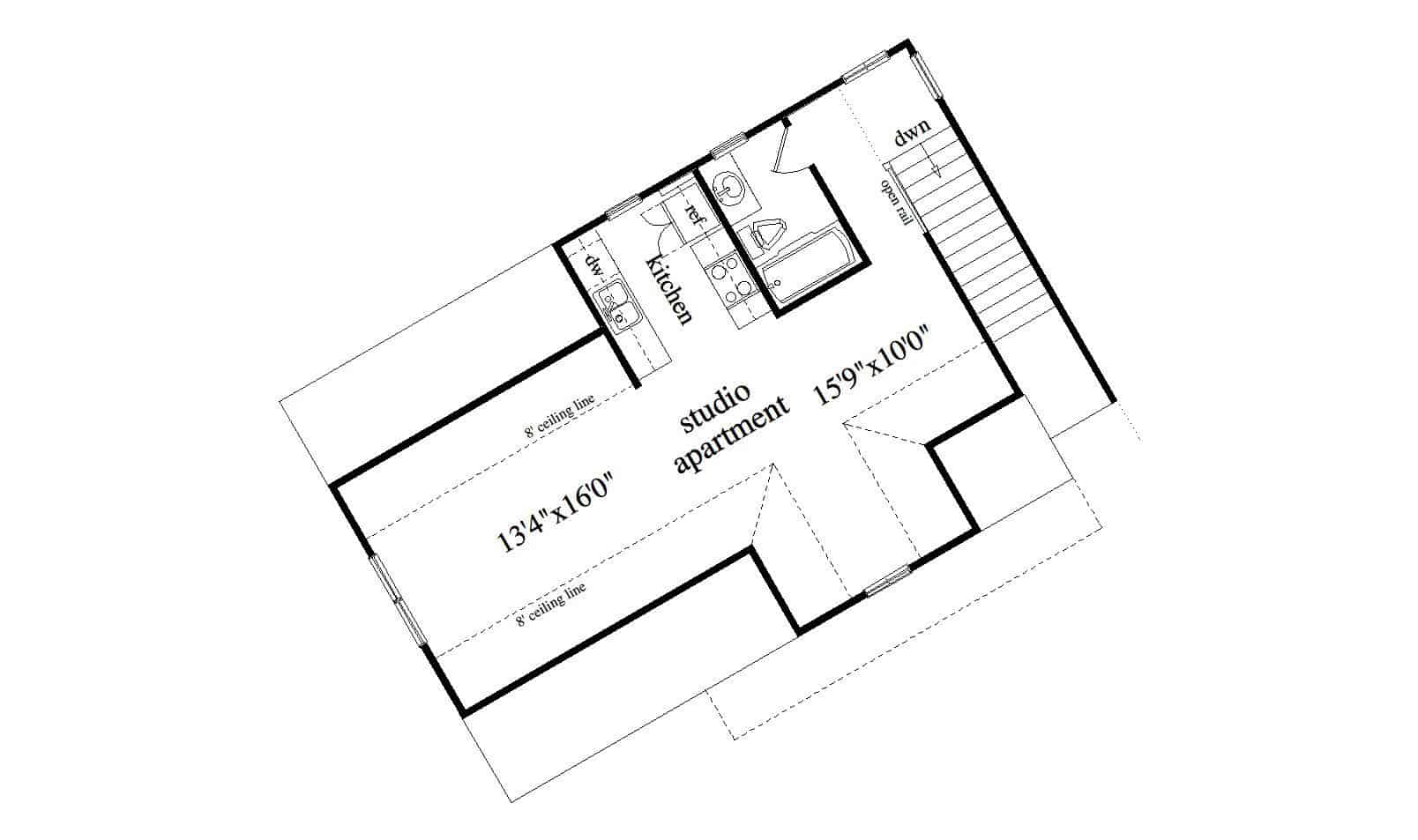
The detached garage with a front entry has 800 square feet of space for 3 vehicles and has an access to the mudroom...
Estimate your costs based on your location and materials.
All sales of house plans, modifications, and other products found on this site are final. No refunds or exchanges can be given once your order has begun the fulfillment process. Please see our Policies for additional information.
All plans offered on ThePlanCollection.com are designed to conform to the local building codes when and where the original plan was drawn.
The homes as shown in photographs and renderings may differ from the actual blueprints. For more detailed information, please review the floor plan images herein carefully.
Estimate your costs based on your location and materials.
























