Estimate your costs based on your location and materials.
Yes! This plan can be customized—contact us for a free quote.


Yes! This plan can be customized—contact us for a free quote.
Please Note! This designer does NOT ship paper copies to Canada. Please order your plans in electronic format (PDF or CAD)! USDA Approval is available for this plan. If interested, submit a modification request for a free quote. What is USDA Approval? Certification that a particular house plan meets the housing requirements of the US Department of Agriculture's Rural Housing Service. This is one of the requirements if you intend to apply for a loan through the Rural Housing Service.
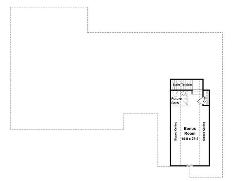
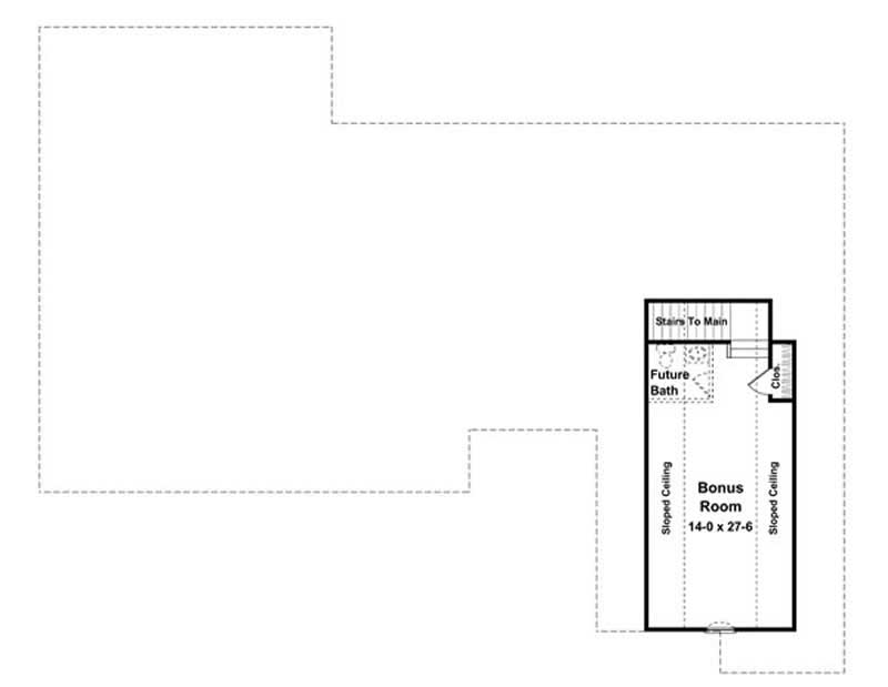
This charming Ranch style home plan with Traditional influences (House Plan #141-1004) has 2218 square feet of living space. The 1 story floor plan includes 3 bedrooms, 3 full bathrooms, and 1 half bath. Additioanlly, it has a bonus room over the 2 car garage, flex space and additional storage!The rear Porch is 176 sq ft and the front porch is 177 sq ft. The garage, both set of stairs and the storage is 773 sq ft. Total first floor unheated area is 1127 sq ft. Bonus room is 458 sq ft. Total under roof including the bonus room is 3803 sq ft not including the basement which comes empty as it...
Estimate your costs based on your location and materials.
All sales of house plans, modifications, and other products found on this site are final. No refunds or exchanges can be given once your order has begun the fulfillment process. Please see our Policies for additional information.
All plans offered on ThePlanCollection.com are designed to conform to the local building codes when and where the original plan was drawn.
The homes as shown in photographs and renderings may differ from the actual blueprints. For more detailed information, please review the floor plan images herein carefully.
Estimate your costs based on your location and materials.




