Estimate your costs based on your location and materials.
Yes! This plan can be customized—contact us for a free quote.

Yes! This plan can be customized—contact us for a free quote.
Please Note: The Reproducible Master for this plan is sent to you on bond paper that reproduces well.
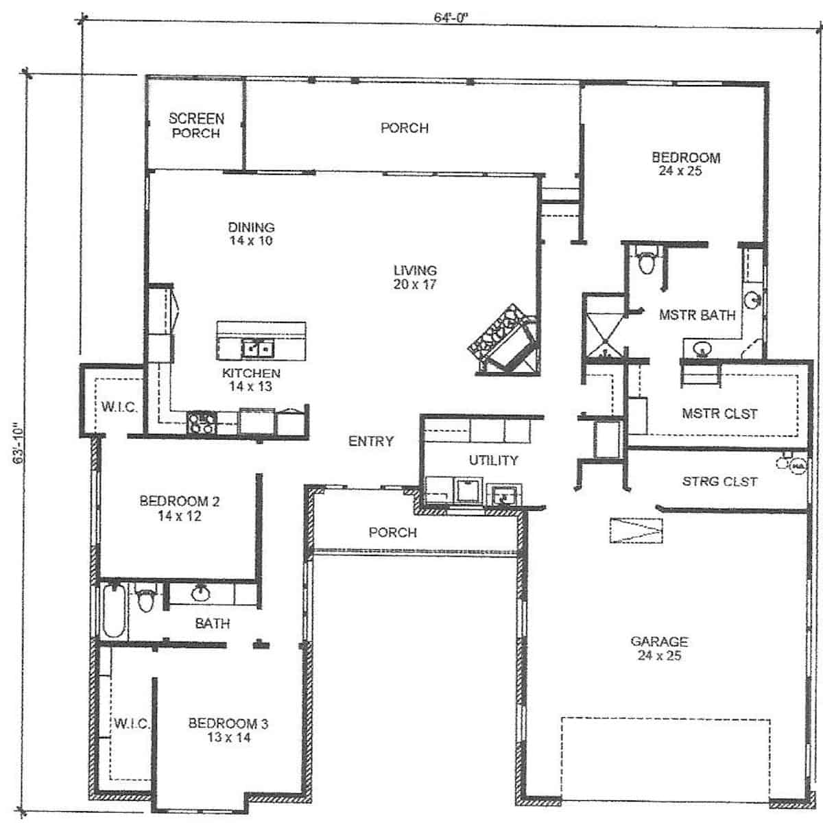
The charming secluded covered front porch creates an inviting entry to this Ranch home in the Contemporary style. The house has 2167 square feet total heated and cooled area that maximizes every available square foot of space. Each of the three bedrooms has a walk-in closet, so there's lots of storage space, and the high ceilings – 10 feet high minimum, with a 15-foot ceiling in the living room and vaulted ceiling in the master bedroom – means the house seems much bigger than it really is. Other amenities include a covered rear porch –...
Estimate your costs based on your location and materials.
All sales of house plans, modifications, and other products found on this site are final. No refunds or exchanges can be given once your order has begun the fulfillment process. Please see our Policies for additional information.
All plans offered on ThePlanCollection.com are designed to conform to the local building codes when and where the original plan was drawn.
The homes as shown in photographs and renderings may differ from the actual blueprints. For more detailed information, please review the floor plan images herein carefully.
Estimate your costs based on your location and materials.

