Estimate your costs based on your location and materials.
Yes! This plan can be customized—contact us for a free quote.

Yes! This plan can be customized—contact us for a free quote.
Please Note: The Reproducible Master for this plan is sent to you on bond paper that reproduces well.
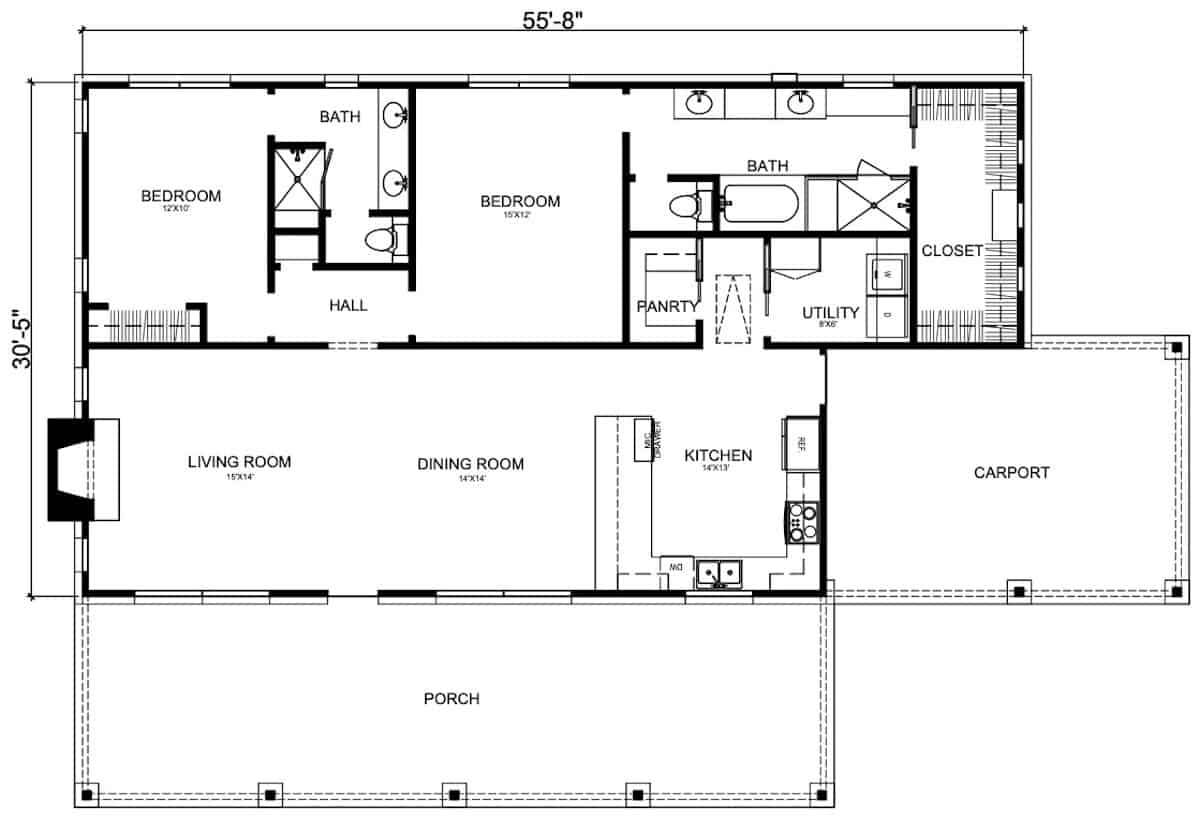
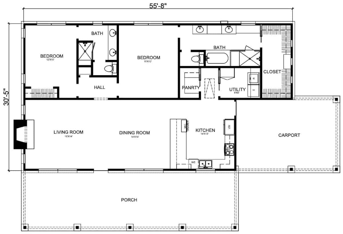
Get ready to be wowed by this stylishly impressive California style Ranch home, which is sure to get your attention. The spacious covered front porch will allow you to enjoy outdoor activities and observe nature while being protected from the discomfort due to inclement weather or scorching sunshine outside. The sweet 1-story home's floor plan has 1322 square feet of fully conditioned living space with adorable amenities:
• Fireplace in the living room
• Large eating bar in the kitchen
• Spacious walk-in kitchen...
Estimate your costs based on your location and materials.
All sales of house plans, modifications, and other products found on this site are final. No refunds or exchanges can be given once your order has begun the fulfillment process. Please see our Policies for additional information.
All plans offered on ThePlanCollection.com are designed to conform to the local building codes when and where the original plan was drawn.
The homes as shown in photographs and renderings may differ from the actual blueprints. For more detailed information, please review the floor plan images herein carefully.
Estimate your costs based on your location and materials.

