Estimate your costs based on your location and materials.
Yes! This plan can be customized—contact us for a free quote.

Yes! This plan can be customized—contact us for a free quote.
We will be closed Wednesday, December 24th, through Friday, December 26th, for Christmas and from Wednesday, December 31st, through Friday, January 2nd, for New Year's Day. Any orders received on those days will not be processed until the following Monday. PLEASE NOTE! When ordering options such as an optional foundation, RRR or 2x4 or 2x6 conversions, the designer may require an additional 2-5 business days to create it. Please keep this in mind when ordering.
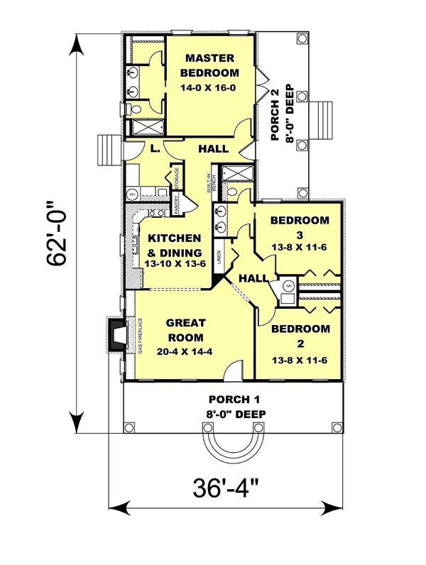
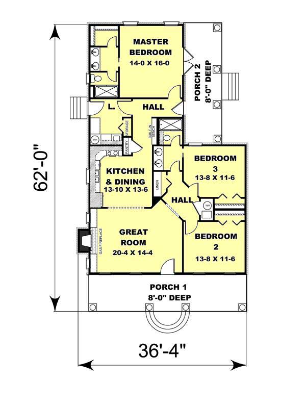
This plan is perfect for a narrow lot or someone looking for a lot of house on a small budget. A large Great Room is home to a gas fireplace flanked by built-in cabinets with windows above. The Great Room has easy access to the Kitchen/Dining Area through an arched opening. The Kitchen/Dining area has lots of storage and a walk-in pantry. A built-in storage bench can be found in the rear hall, the perfect spot for taking off your shoes, after a long day. Bedrooms 2 and 3 share a compartment style bath with easy access for guests also. A large Linen closet is located in this area for extra...
Estimate your costs based on your location and materials.
All sales of house plans, modifications, and other products found on this site are final. No refunds or exchanges can be given once your order has begun the fulfillment process. Please see our Policies for additional information.
All plans offered on ThePlanCollection.com are designed to conform to the local building codes when and where the original plan was drawn.
The homes as shown in photographs and renderings may differ from the actual blueprints. For more detailed information, please review the floor plan images herein carefully.
Estimate your costs based on your location and materials.




