Estimate your costs based on your location and materials.
Yes! This plan can be customized—contact us for a free quote.



Yes! This plan can be customized—contact us for a free quote.
Happy Holidays! The designer's office is closed for the holidays until January 1st. All orders, inquiries, and quotes will be completed when the designer resumes office hours on January 1st.
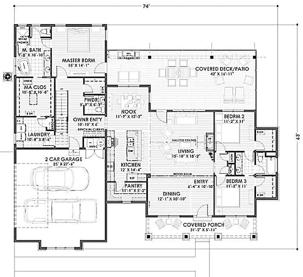
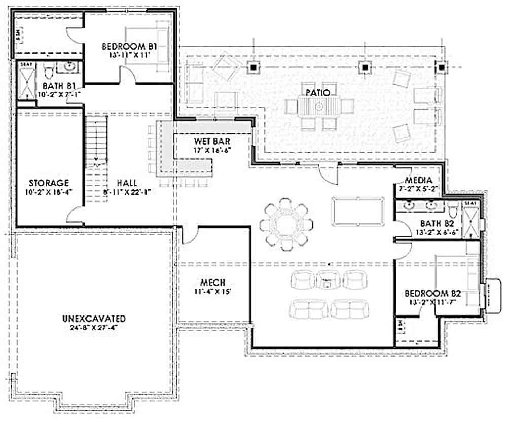
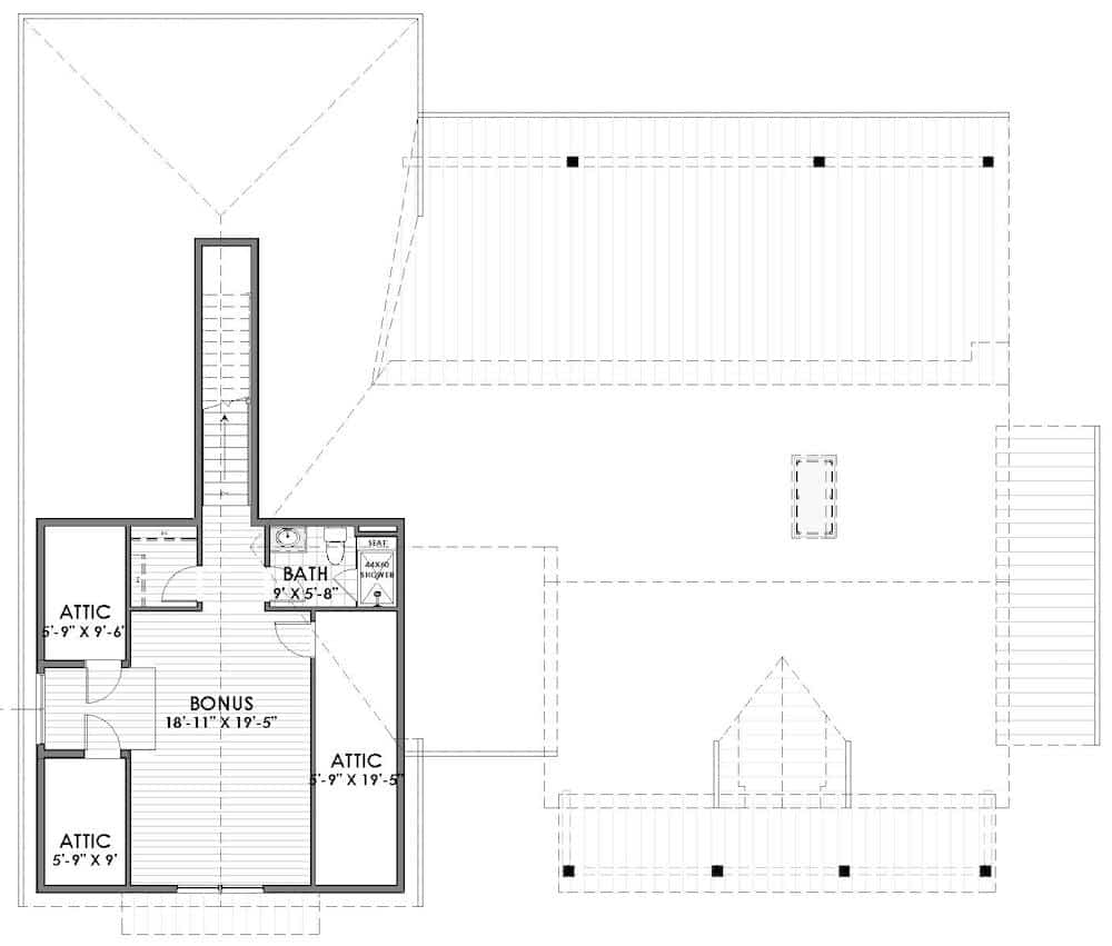
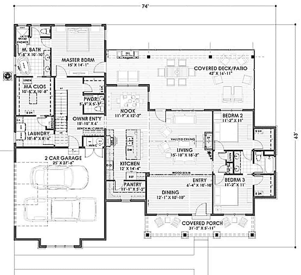
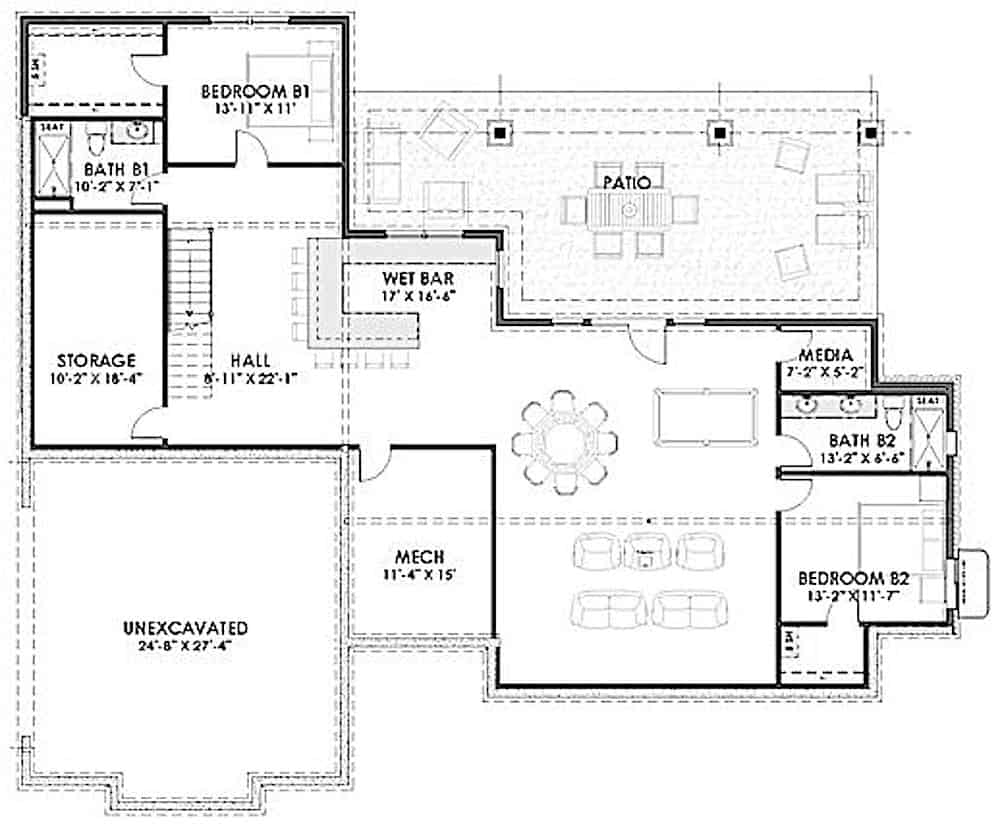
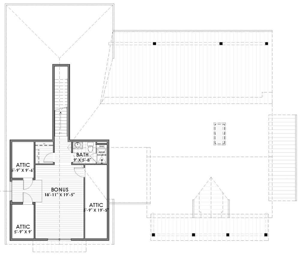
You'll be impressed as you approach this Farmhouse-style home with Contemporary characteristics. The stylish house consists of 3 bedrooms, 3 full bathrooms, and a half bathroom and is carefully designed with the ultimate convenience for the family. The beautifully functional 1-story floor plan has 2729 square feet of heated-cooled living space with a 2341-square-foot basement that can be finished at your option.
Estimate your costs based on your location and materials.
All sales of house plans, modifications, and other products found on this site are final. No refunds or exchanges can be given once your order has begun the fulfillment process. Please see our Policies for additional information.
All plans offered on ThePlanCollection.com are designed to conform to the local building codes when and where the original plan was drawn.
The homes as shown in photographs and renderings may differ from the actual blueprints. For more detailed information, please review the floor plan images herein carefully.
Estimate your costs based on your location and materials.
















