Estimate your costs based on your location and materials.
Yes! This plan can be customized—contact us for a free quote.


Yes! This plan can be customized—contact us for a free quote.
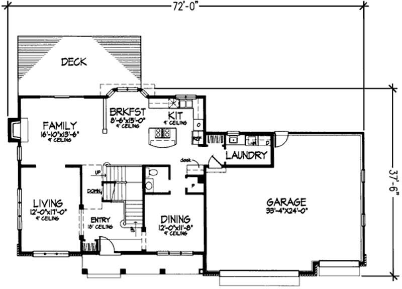
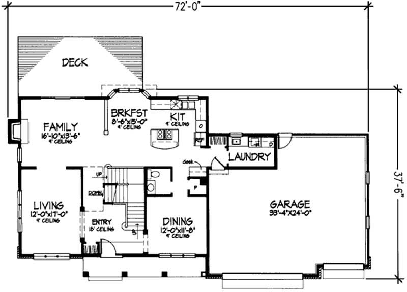
This charming design perfectly marries a traditional exterior to a modern floor plan. The gourmet kitchen expands into a bayed breakfast nook that looks over a low wall into the family room, which boasts a grand fireplace. Upstairs, the master suite flaunts dual walk-in closets, dual vanities, a garden tub and a separate shower.
Estimate your costs based on your location and materials.
All sales of house plans, modifications, and other products found on this site are final. No refunds or exchanges can be given once your order has begun the fulfillment process. Please see our Policies for additional information.
All plans offered on ThePlanCollection.com are designed to conform to the local building codes when and where the original plan was drawn.
The homes as shown in photographs and renderings may differ from the actual blueprints. For more detailed information, please review the floor plan images herein carefully.
Estimate your costs based on your location and materials.


