Estimate your costs based on your location and materials.
Yes! This plan can be customized—contact us for a free quote.


Yes! This plan can be customized—contact us for a free quote.
Please Note: There might be a 4-5 day delay in getting the sales orders out due to updates being made to the designer's plans.
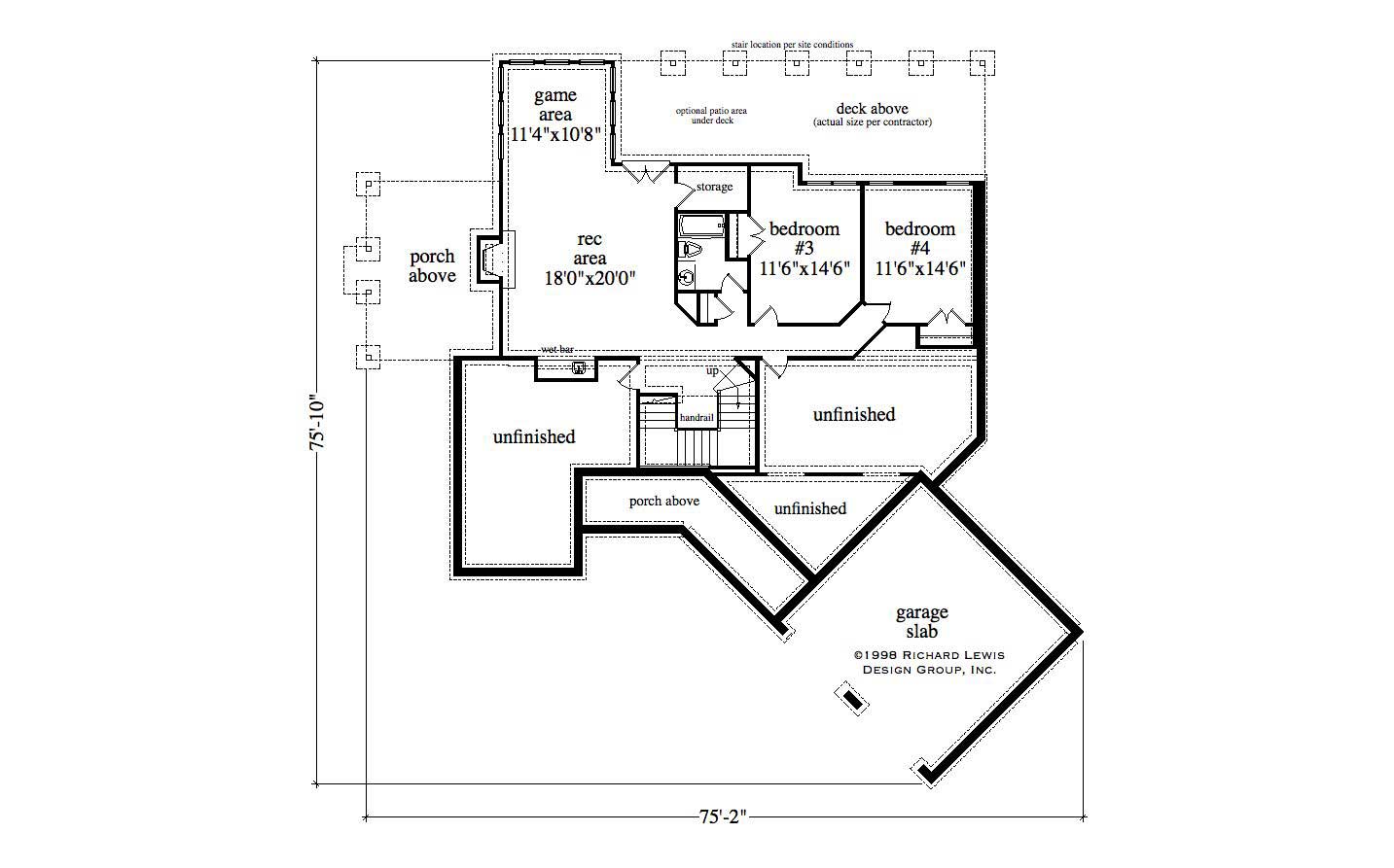
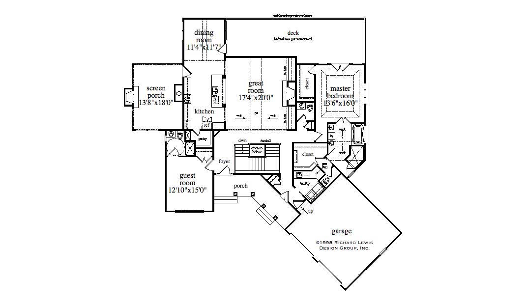
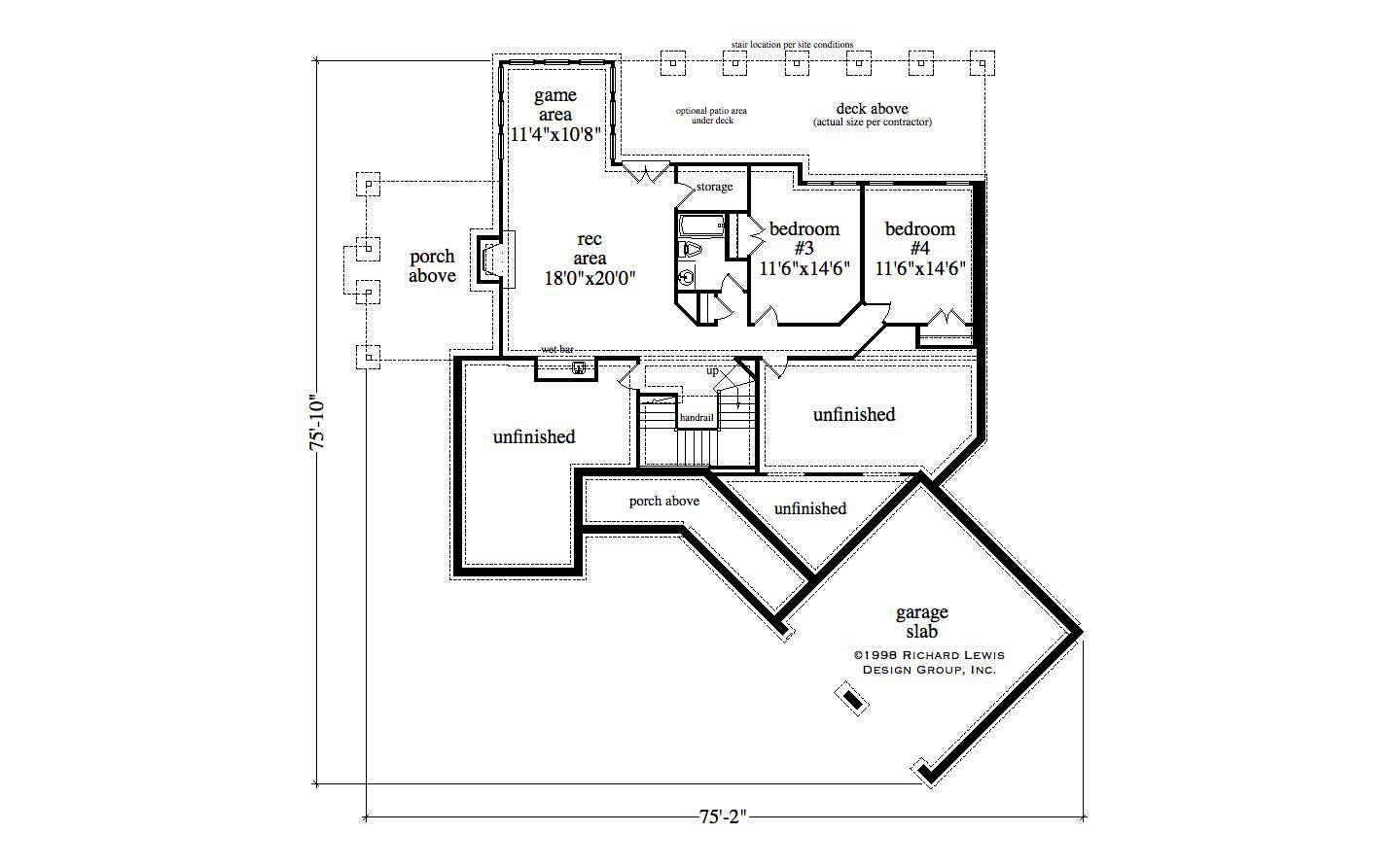
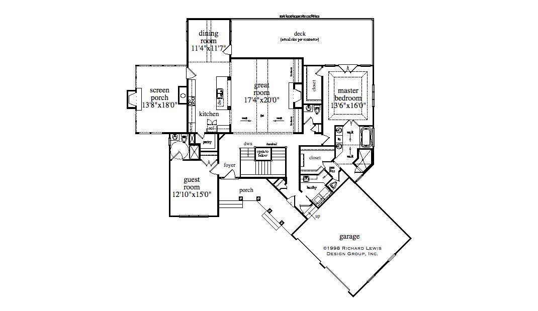
This mountain style home is beautifully done with angles. The exterior elevation is a country craftsman style and has an angled, covered front porch with 2 entrances to the house from the porch. The back has a large deck and a screened porch with lots of window to let in the light. The interior floor plan (main level approx. 1,960 sq.ft.) welcomes you with a view to the large vaulted great room and wall of windows. The master bedroom suite is on the main level, has 2 walk-in closets and adjoins the laundry room for easy access. A handicapped ready guest suite lies on the main level on the...
Estimate your costs based on your location and materials.
All sales of house plans, modifications, and other products found on this site are final. No refunds or exchanges can be given once your order has begun the fulfillment process. Please see our Policies for additional information.
All plans offered on ThePlanCollection.com are designed to conform to the local building codes when and where the original plan was drawn.
The homes as shown in photographs and renderings may differ from the actual blueprints. For more detailed information, please review the floor plan images herein carefully.
Estimate your costs based on your location and materials.





