Estimate your costs based on your location and materials.
Yes! This plan can be customized—contact us for a free quote.


Yes! This plan can be customized—contact us for a free quote.
On some plans, Basement Foundations, Walkout Basement Foundations, & 2x6 Conversions could take up to ONE WEEK to produce. Materials Lists could take up to FOUR WEEKS to produce and they will be for the ORIGINAL plan! Any modifications will NOT be reflected on the Materials List. NOTE FROM DESIGNER: If you purchase a CAD, you will automatically receive the unlimited build license - no need to purchase separately!
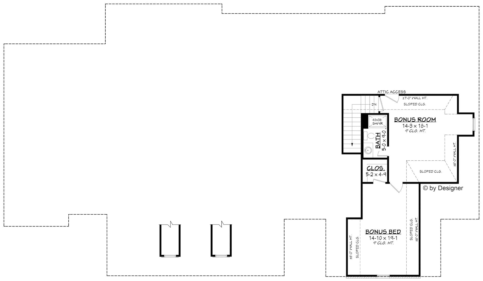
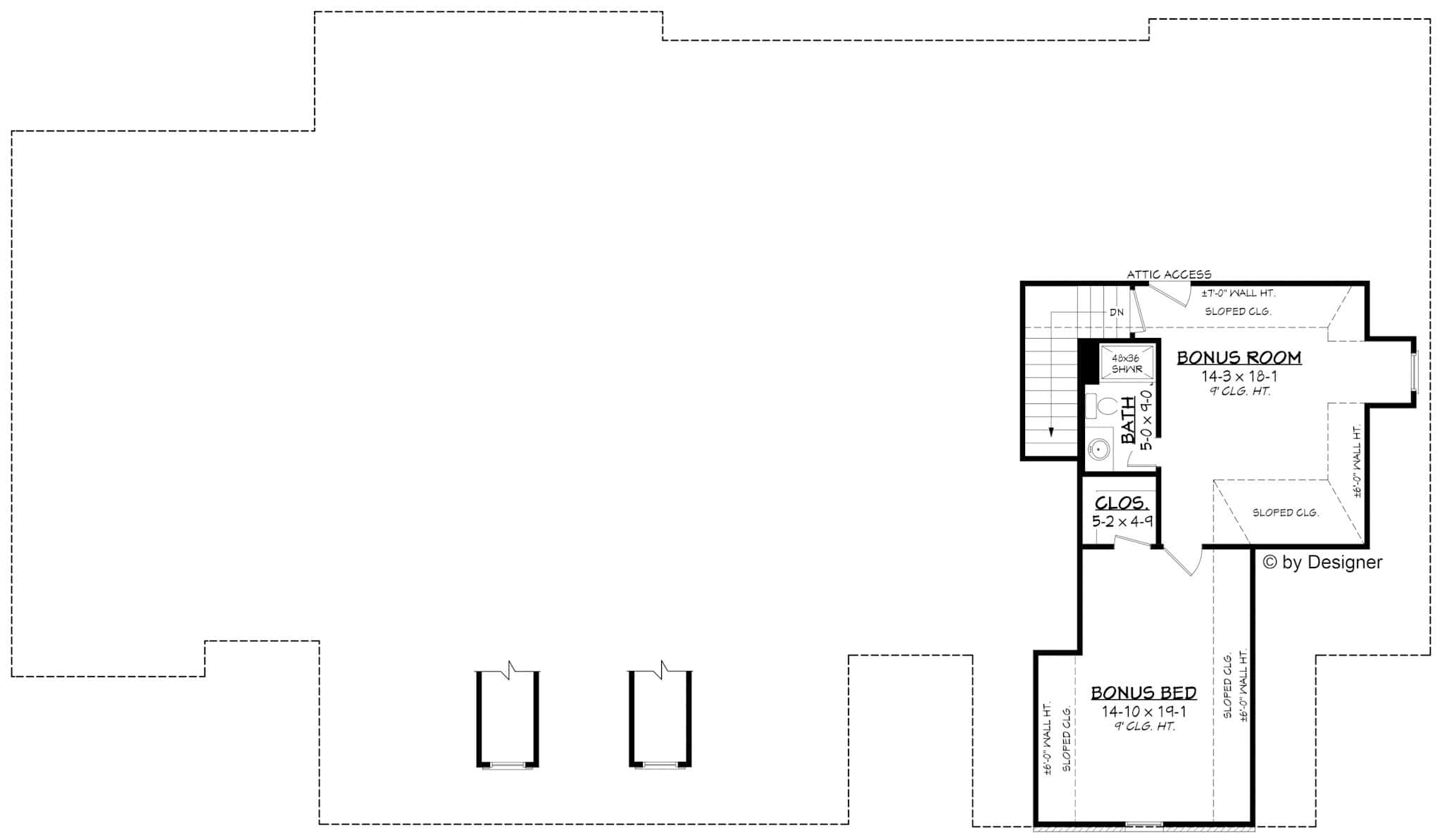
Please note: The total square footage of this plan is 5626.
Large and traditional, this impressive home has 3,194 living sq ft. The brick and wood siding gives this home significant curb appeal (Plan #142-1167). The sizable foyer leads you to the open floor plan layout. There are several amenities including a mud room, home office, and plenty of storage. The Great Room has built-ins and a gas log fireplace. The kitchen is also open to the breakfast area, Great Room, and dining area. The kitchen has an island with an eating bar and a walk-in pantry. The breakfast nook leads to the rear porch, giving the option to enjoy family meals outside. The...
Estimate your costs based on your location and materials.
All sales of house plans, modifications, and other products found on this site are final. No refunds or exchanges can be given once your order has begun the fulfillment process. Please see our Policies for additional information.
All plans offered on ThePlanCollection.com are designed to conform to the local building codes when and where the original plan was drawn.
The homes as shown in photographs and renderings may differ from the actual blueprints. For more detailed information, please review the floor plan images herein carefully.
Estimate your costs based on your location and materials.



































