4-Bedroom, 2694 Sq Ft Traditional Plan with Main Floor Master

Main image for house plan # 178-1211

Images/Plans copyrighted by designer. Photos may reflect homeowner modifications.

About House Plan #178-1211

Sq Ft
2694
Sq Ft
Bedrooms
4
Bedrooms
Bathroom
3
Baths
Half Baths
0
Half Baths
Bedrooms
2
Cars
Bedrooms
1
Stories
Bedrooms
66' 0'
Width
Bedrooms
68
Depth
Starting at$1185.00What's included
STEP 1Bedrooms
STEP 2Bedrooms
STEP 3Bedrooms

Subtotal:$0
BedroomsBest Price Guaranteed
Plan Collection

How much will it cost to build?

Estimate your costs based on your location and materials.

Free Cost Instant Estimator

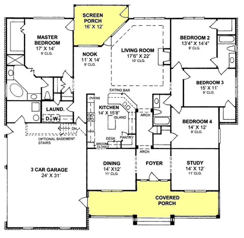
Floor Plans

FIRST FLOOR PLAN
FIRST FLOOR PLAN
Plan Collection

Can I modify this plan?

Yes! This plan can be customized—contact us for a free quote.

Additional Notes from Designer

Please Note: This plan comes standard with a Construction License that gives the original purchaser the right to build the plan as many times as you like. This designer does not provide concrete block or cinder block. PLEASE NOTE!! When purchasing a CAD file, the designer will also send the PDF. Duplex and Triplex Plans are Slab & 2x4 ONLY!! If you need to change either, please send in a modification request. This multi-family plan has two identical units. Each unit has 1,567 living square feet, 3 bedrooms, 2.5 baths, and 1 garage space.

House Plan Description

This is a nice Country Bungalow house plan with an open floor plan, four bedrooms, three bathrooms, and a three car garage.

Home Details

Summary
Plan #:178-1211
Starting at:$1185.00
Floors:1
Bedrooms:4
Full Baths:3
Half Baths:0
Garage:
Square Footage
Heated Area:2694 Sq. Ft.
First Floor:2694 Sq. Ft.
Unheated Area:
Dimensions
Ridge Height:31' 0''
Architectural Styles
Exterior Wall Material
Vinyl SidingBrick
Garage Type
Attached Garage
Porches and Exterior Features
Covered Front Porch

What’s Included

Most plan sets include the following:

icon text-secondary-400 includedFront elevation and construction notes

icon text-secondary-400 includedRear and side elevations

icon text-secondary-400 includedFloor plan, including electrical, window and door sizes, floor joist span directions, and ceiling type notes (9’ ceiling, vault, etc)

icon text-secondary-400 includedSecond-floor plan (if applicable) with the same info as shown on first-floor plan

icon text-secondary-400 includedTypical wall section

icon text-secondary-400 includedTypical foundation details

icon text-secondary-400 includedRoof plan showing roof pitches, ridges & valleys.

icon text-secondary-400 includedFoundation plan

icon text-secondary-400 includedFull building section

What’s Not Included

These items are  NOT included:

icon text-secondary-400 includedArchitectural or Engineering Stamp - handled locally if required.

icon text-secondary-400 includedSite Plan - handled locally when required.

icon text-secondary-400 includedMechanical Drawings (location of heating and air equipment and duct work) - your subcontractors handle this.

icon text-secondary-400 includedPlumbing Drawings (drawings showing the actual plumbing pipe sizes and locations) - your subcontractors handle this.

icon text-secondary-400 includedEnergy calculations - handled locally when required.

Related House Plans

Plan Collection
Plan Collection
Plan Collection
Plan#142-1102
Starting at$1495
2639
Sq Ft
1
Story
4
Bed
3
Bath
2
Car
Plan Collection
Plan Collection
Plan Collection
Plan#146-2173
Starting at$1015
2464
Sq Ft
1
Story
4
Bed
3
Bath
3
Car
Plan Collection
Plan Collection
Plan Collection
Plan#142-1244
Starting at$1645
3086
Sq Ft
1
Story
4
Bed
3.5
Bath
3
Car
View All

Other Plans By This Designer

Plan Collection
Plan Collection
Plan Collection
Plan#178-1345
Starting at$680
395
Sq Ft
1
Story
1
Bed
1
Bath
0
Car
Plan Collection
Plan Collection
Plan Collection
Plan#178-1214
Starting at$1125
2193
Sq Ft
1
Story
4
Bed
3
Bath
3
Car
Plan Collection
Plan Collection
Plan Collection
Plan#178-1248
Starting at$1045
1277
Sq Ft
1
Story
3
Bed
2
Bath
0
Car