Estimate your costs based on your location and materials.
Yes! This plan can be customized—contact us for a free quote.

Yes! This plan can be customized—contact us for a free quote.
Please Note: This plan comes standard with a Construction License that gives the original purchaser the right to build the plan as many times as you like. This designer does not provide concrete block or cinder block. PLEASE NOTE!! When purchasing a CAD file, the designer will also send the PDF. Duplex and Triplex Plans are Slab & 2x4 ONLY!! If you need to change either, please send in a modification request. This multi-family plan has two identical units. Each unit has 1,567 living square feet, 3 bedrooms, 2.5 baths, and 1 garage space.
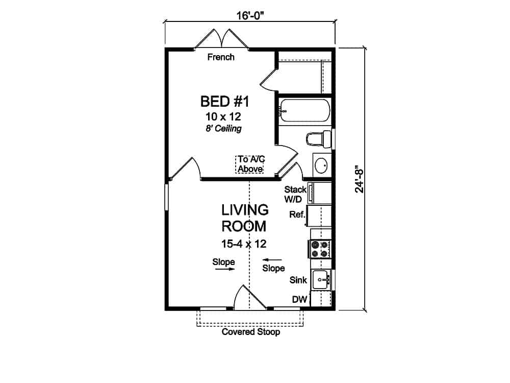
This 1-bedroom, 395 living square foot cottage is a small, intimate living space. Its beautiful Craftsman detailing is sure to make a statement. The living room feels more spacious with its vaulted ceiling while the kitchen is efficiently designed. In the bedroom, a walk-in closet offers plenty of storage space for all your belongings. Whether you're looking for a starter home, guest house, casita, or in-law quarters, this cottage plan is ideal for anyone who wants to downsize without sacrificing style or comfort.
Estimate your costs based on your location and materials.
All sales of house plans, modifications, and other products found on this site are final. No refunds or exchanges can be given once your order has begun the fulfillment process. Please see our Policies for additional information.
All plans offered on ThePlanCollection.com are designed to conform to the local building codes when and where the original plan was drawn.
The homes as shown in photographs and renderings may differ from the actual blueprints. For more detailed information, please review the floor plan images herein carefully.
Estimate your costs based on your location and materials.


