Estimate your costs based on your location and materials.
Yes! This plan can be customized—contact us for a free quote.

Yes! This plan can be customized—contact us for a free quote.
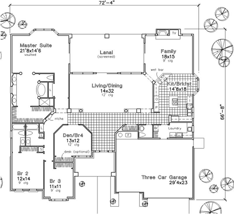
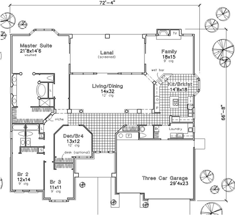
Curved transom windows and elaborate brick treatments give this spacious one-story a luxurious Mediterranean appeal. Past the covered porch entrance, the bright and airy foyer features an impressive 12-ft. ceiling that extends into the living/dining area. Defined by columns and plant shelves, this huge formal expanse offers a spectacular view of a skylighted and screened lanai. An elegant archway leads into the family room, which offers a cozy fireplace, a built-in media center, a wet bar and access to the lanai. The roomy island kitchen includes a pantry and a bay-windowed breakfast nook. A...
Estimate your costs based on your location and materials.
All sales of house plans, modifications, and other products found on this site are final. No refunds or exchanges can be given once your order has begun the fulfillment process. Please see our Policies for additional information.
All plans offered on ThePlanCollection.com are designed to conform to the local building codes when and where the original plan was drawn.
The homes as shown in photographs and renderings may differ from the actual blueprints. For more detailed information, please review the floor plan images herein carefully.
Estimate your costs based on your location and materials.

