Estimate your costs based on your location and materials.
Yes! This plan can be customized—contact us for a free quote.


Yes! This plan can be customized—contact us for a free quote.
PLEASE NOTE: Materials Lists are based on the STOCK plan ONLY without modifications! Custom materials lists are available if you modify a plan. Please ask for a quote.
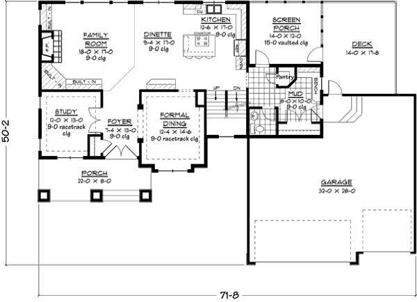
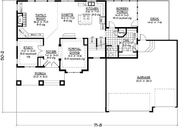
This attractive set of Country House Plans provides plenty of space for family fun, whether indoors or outdoors. The family room boasts extensive built-ins for entertainment equipment. Even the family cook can partake of the fun, thanks to the kitchen's wide-open layout. Casual meals can be enjoyed just off the kitchen, while a formal dining room provides a secluded spot for elegant feasts. Outdoor fun is a must in the screen porch, which gets a boost from a vaulted ceiling and extends out to back deck. The upper floor hosts three secondary bedrooms and the owner's suite, which includes an...
Estimate your costs based on your location and materials.
All sales of house plans, modifications, and other products found on this site are final. No refunds or exchanges can be given once your order has begun the fulfillment process. Please see our Policies for additional information.
All plans offered on ThePlanCollection.com are designed to conform to the local building codes when and where the original plan was drawn.
The homes as shown in photographs and renderings may differ from the actual blueprints. For more detailed information, please review the floor plan images herein carefully.
Estimate your costs based on your location and materials.



