Estimate your costs based on your location and materials.
Yes! This plan can be customized—contact us for a free quote.

Yes! This plan can be customized—contact us for a free quote.
NO Material lists.
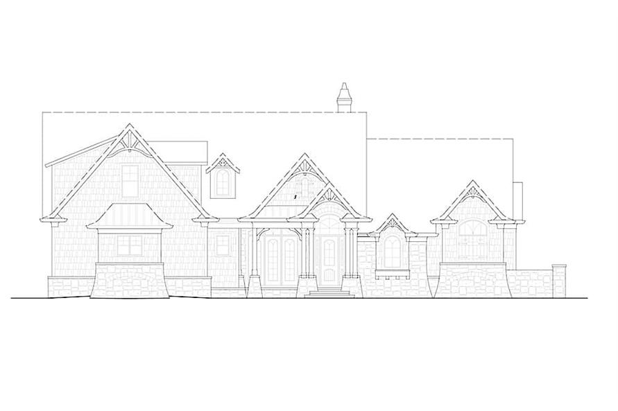
This stunning Cottage style home with Farmhouse traits has a 2795-square-foot total living area with magnificent space created all around the house that's sure to be enjoyed by the whole family.
Upon stepping up to the front of the house, you'll be greeted by the grand covered porch, which shelters the main entrance. Opening the front door ushers you to the lodge room, dining area, and main kitchen, all in an open plan. The fireplace-equipped keeping room with breakfast area is steps away from the kitchen. The...
Estimate your costs based on your location and materials.
All sales of house plans, modifications, and other products found on this site are final. No refunds or exchanges can be given once your order has begun the fulfillment process. Please see our Policies for additional information.
All plans offered on ThePlanCollection.com are designed to conform to the local building codes when and where the original plan was drawn.
The homes as shown in photographs and renderings may differ from the actual blueprints. For more detailed information, please review the floor plan images herein carefully.
Estimate your costs based on your location and materials.




