Estimate your costs based on your location and materials.
Yes! This plan can be customized—contact us for a free quote.

Yes! This plan can be customized—contact us for a free quote.
NO Material lists.
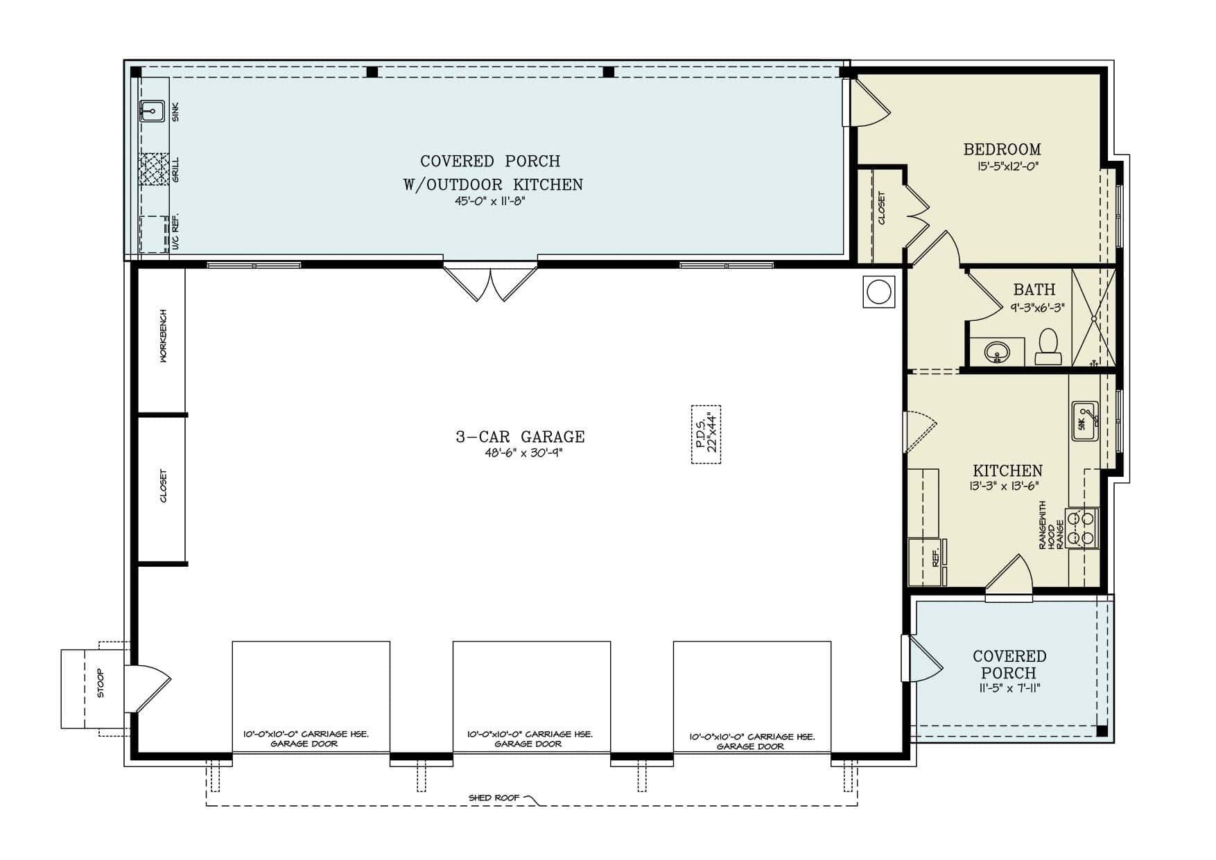
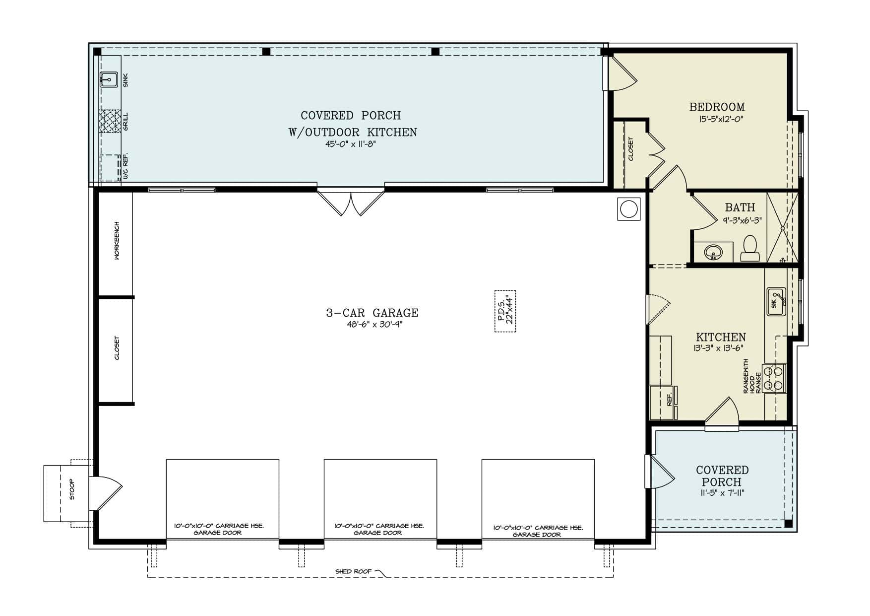
Designed with inviting Modern Farmhouse elements, this garage plan offers 1,555 square feet of garage space that accommodates three vehicles. Separate from the garage area is 498 square feet of fully conditioned living space, all located on the main floor. The layout includes a private bedroom, a full bathroom with a walk-in closet, and a functional kitchen. Charming covered front and rear porches complete the design, providing comfortable spots to enjoy the outdoors.
Estimate your costs based on your location and materials.
All sales of house plans, modifications, and other products found on this site are final. No refunds or exchanges can be given once your order has begun the fulfillment process. Please see our Policies for additional information.
All plans offered on ThePlanCollection.com are designed to conform to the local building codes when and where the original plan was drawn.
The homes as shown in photographs and renderings may differ from the actual blueprints. For more detailed information, please review the floor plan images herein carefully.
Estimate your costs based on your location and materials.














