Estimate your costs based on your location and materials.
Yes! This plan can be customized—contact us for a free quote.


Yes! This plan can be customized—contact us for a free quote.
CAD files for this plan will be delivered in both DXF (AutoCad readable) and Sketchup Pro formats.
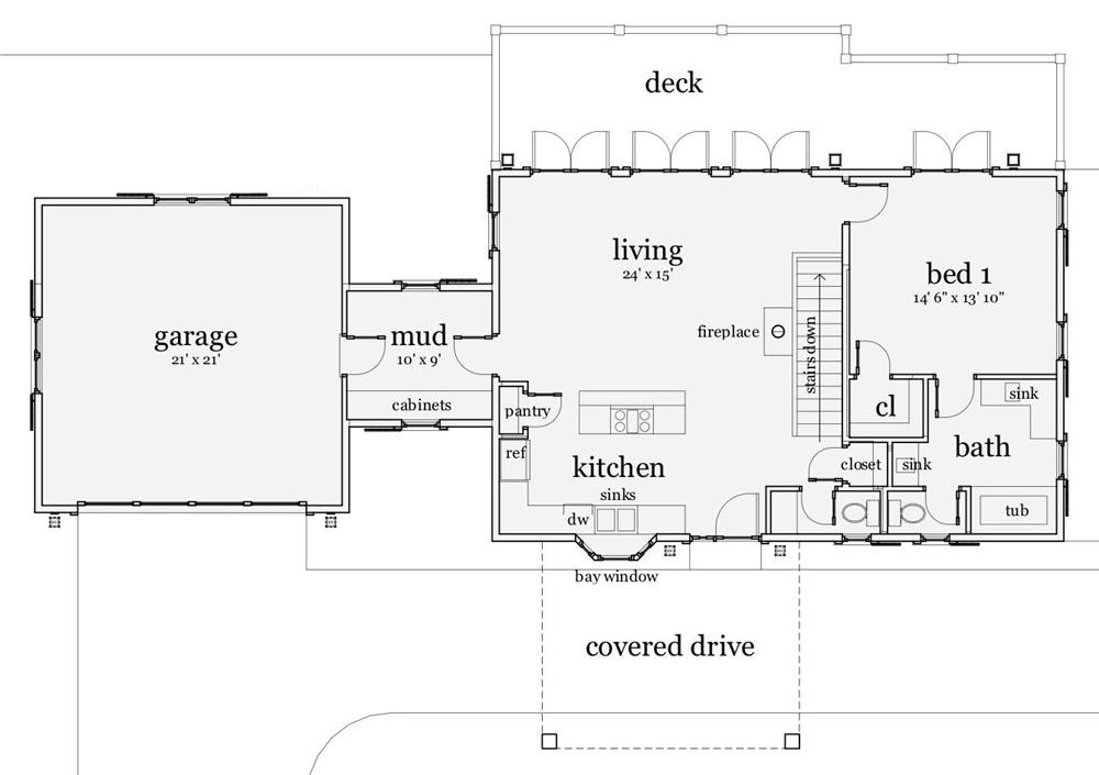
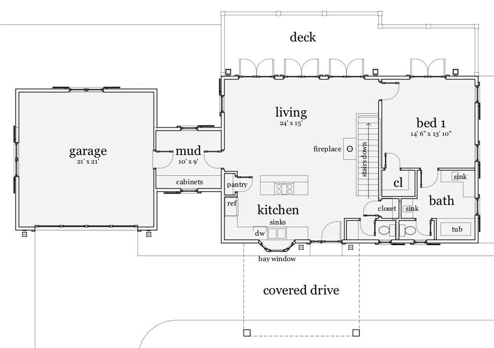
This lovely Cottage style home plan with Contemporary influences (House Plan #116-1074) has 2200 sq. ft. of living space. The 2 story floor plan has 3 bedrooms, 2 full bathrooms, and 1 half bath.
The home combines the relaxed atmosphere of rustic mountain living with the convenience of today's technology and efficiency. The grand living room features a fireplace and magnificent view of the property. The master suite is spacious and has its own access to the rear deck. Two complete suites downstairs are perfect for guests or family reunions.
Estimate your costs based on your location and materials.
All sales of house plans, modifications, and other products found on this site are final. No refunds or exchanges can be given once your order has begun the fulfillment process. Please see our Policies for additional information.
All plans offered on ThePlanCollection.com are designed to conform to the local building codes when and where the original plan was drawn.
The homes as shown in photographs and renderings may differ from the actual blueprints. For more detailed information, please review the floor plan images herein carefully.
Estimate your costs based on your location and materials.







