Estimate your costs based on your location and materials.
Yes! This plan can be customized—contact us for a free quote.


Yes! This plan can be customized—contact us for a free quote.
On some plans, Basement Foundations, Walkout Basement Foundations, & 2x6 Conversions could take up to ONE WEEK to produce. Materials Lists could take up to FOUR WEEKS to produce and they will be for the ORIGINAL plan! Any modifications will NOT be reflected on the Materials List. NOTE FROM DESIGNER: If you purchase a CAD, you will automatically receive the unlimited build license - no need to purchase separately!
Please Note: Ordering 2x6 Exterior Wall Framing option will require an additional 5 business days before plan can be shipped.
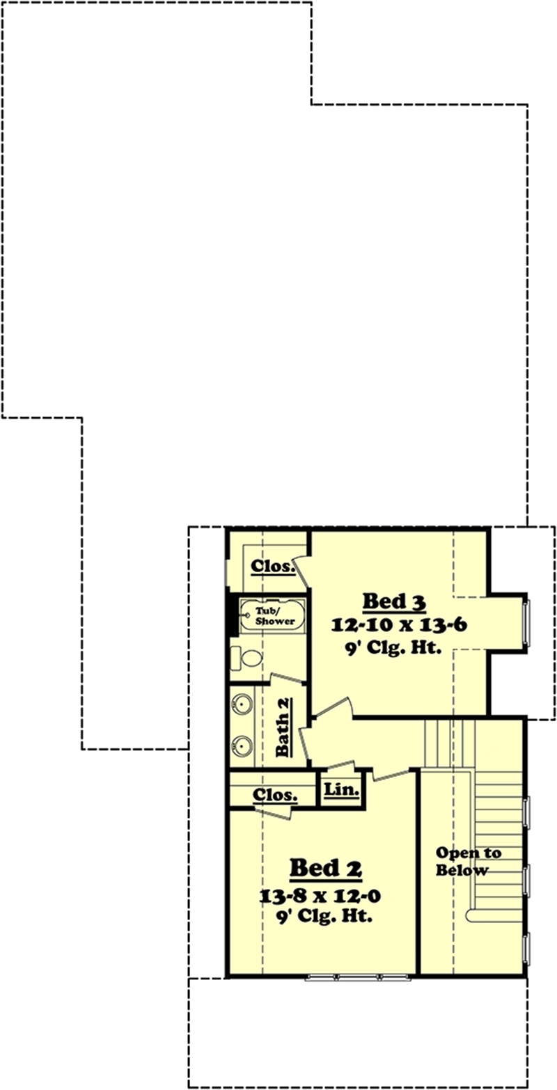
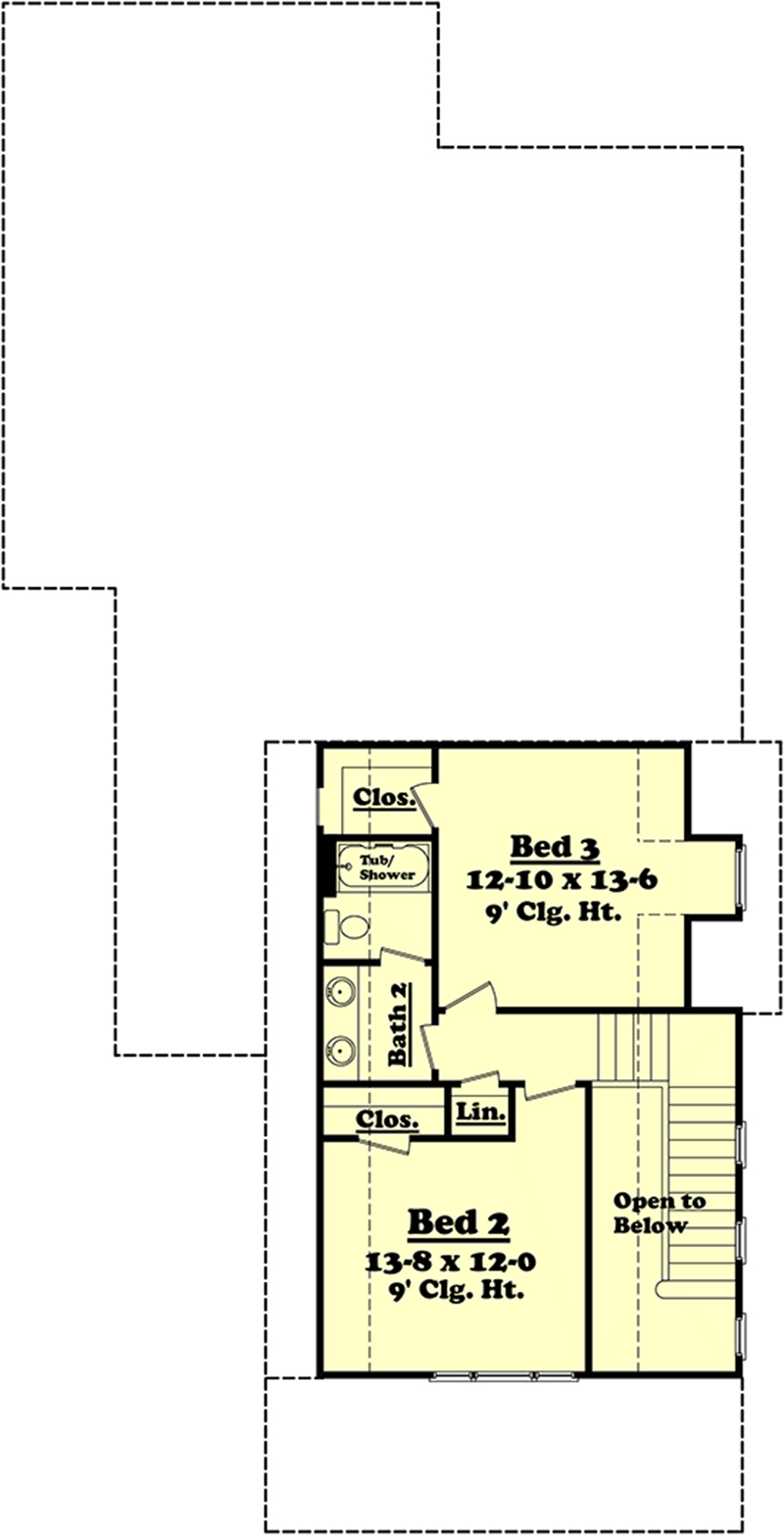
This charming Cottage style home plan with Bungalow influences (House Plan # 142-1096) has 2185 square feet of living space. The 2 story floor plan includes 3 bedrooms, 2 full bathrooms, and 1 half bath.
• The exterior has a welcoming covered front porch.
• Inside, this open floor plan includes a central, see-thru fireplace.
• Toward the rear of the home is a well-designed main floor master bedroom suite for added privacy.
• There is also a small office off the mudroom.
Estimate your costs based on your location and materials.
All sales of house plans, modifications, and other products found on this site are final. No refunds or exchanges can be given once your order has begun the fulfillment process. Please see our Policies for additional information.
All plans offered on ThePlanCollection.com are designed to conform to the local building codes when and where the original plan was drawn.
The homes as shown in photographs and renderings may differ from the actual blueprints. For more detailed information, please review the floor plan images herein carefully.
Estimate your costs based on your location and materials.












