Estimate your costs based on your location and materials.
Yes! This plan can be customized—contact us for a free quote.



Yes! This plan can be customized—contact us for a free quote.
CAD files for this plan will be delivered in both DXF (AutoCad readable) and Sketchup Pro formats.
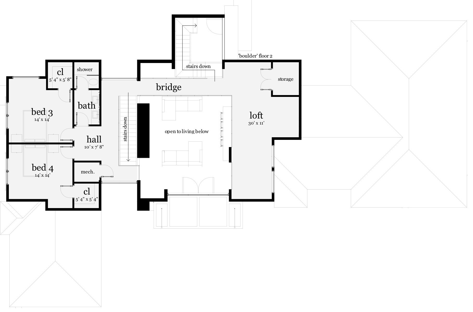
This bold, Modern style home plan with a California vibe has 3885 square feet of living space. The 2-story floor plan includes four bedrooms, three full bathrooms, and one half bath.
The house plan has two bedroom suites downstairs and two upstairs. The large living space connects with the dining, kitchen, and upstairs loft for an open entertaining area. There is a total of 5,297 SF (including unconditioned space) under the roof. The standard version of this plan is designed with a concrete slab on grade. The exterior walls are 2x6 wood...
Estimate your costs based on your location and materials.
All sales of house plans, modifications, and other products found on this site are final. No refunds or exchanges can be given once your order has begun the fulfillment process. Please see our Policies for additional information.
All plans offered on ThePlanCollection.com are designed to conform to the local building codes when and where the original plan was drawn.
The homes as shown in photographs and renderings may differ from the actual blueprints. For more detailed information, please review the floor plan images herein carefully.
Estimate your costs based on your location and materials.












