Estimate your costs based on your location and materials.
Yes! This plan can be customized—contact us for a free quote.

Yes! This plan can be customized—contact us for a free quote.
Please Note: The Reproducible Master for this plan is sent to you on bond paper that reproduces well.
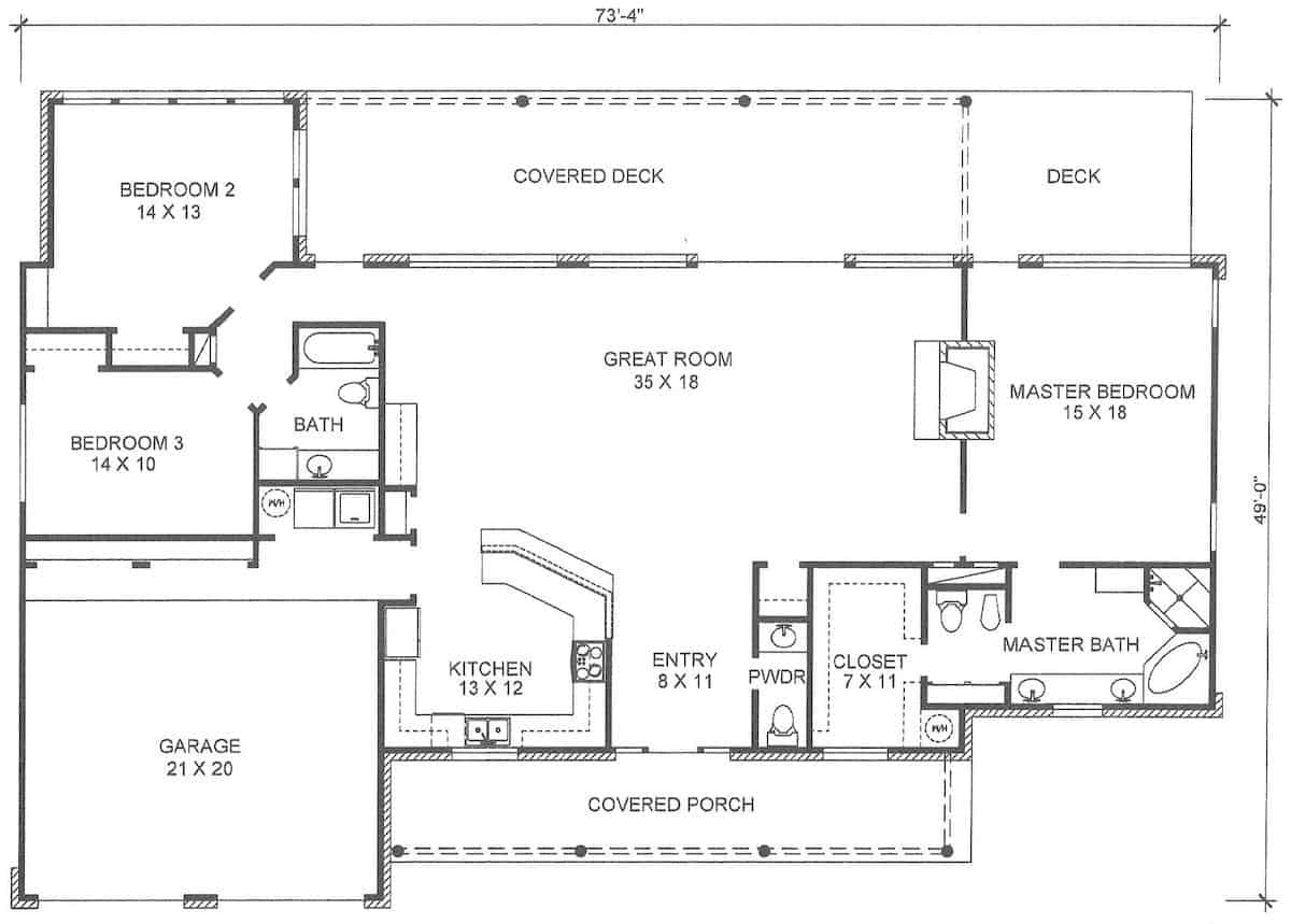
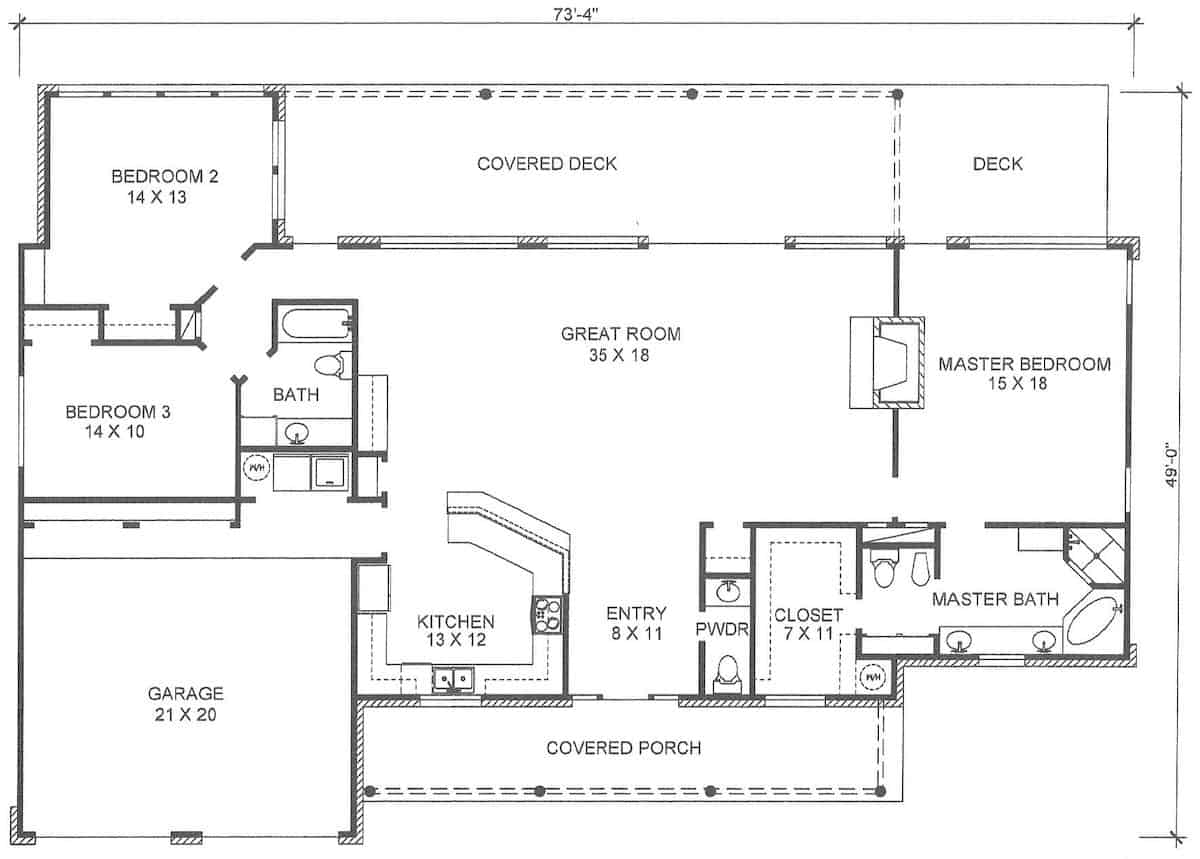
The straightforward styling and down-home design of this Country Ranch style home makes it interesting and inviting. with a homey curb appeal. You're sure to love the spacious, open layout of the house, which makes it ideal for entertaining and everyday living. The cozy home's 1-story floor plan has 2026 square feet of heated and cooled living space with 3 bedrooms.
Estimate your costs based on your location and materials.
All sales of house plans, modifications, and other products found on this site are final. No refunds or exchanges can be given once your order has begun the fulfillment process. Please see our Policies for additional information.
All plans offered on ThePlanCollection.com are designed to conform to the local building codes when and where the original plan was drawn.
The homes as shown in photographs and renderings may differ from the actual blueprints. For more detailed information, please review the floor plan images herein carefully.
Estimate your costs based on your location and materials.

