Estimate your costs based on your location and materials.
Yes! This plan can be customized—contact us for a free quote.

Yes! This plan can be customized—contact us for a free quote.
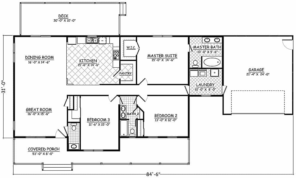
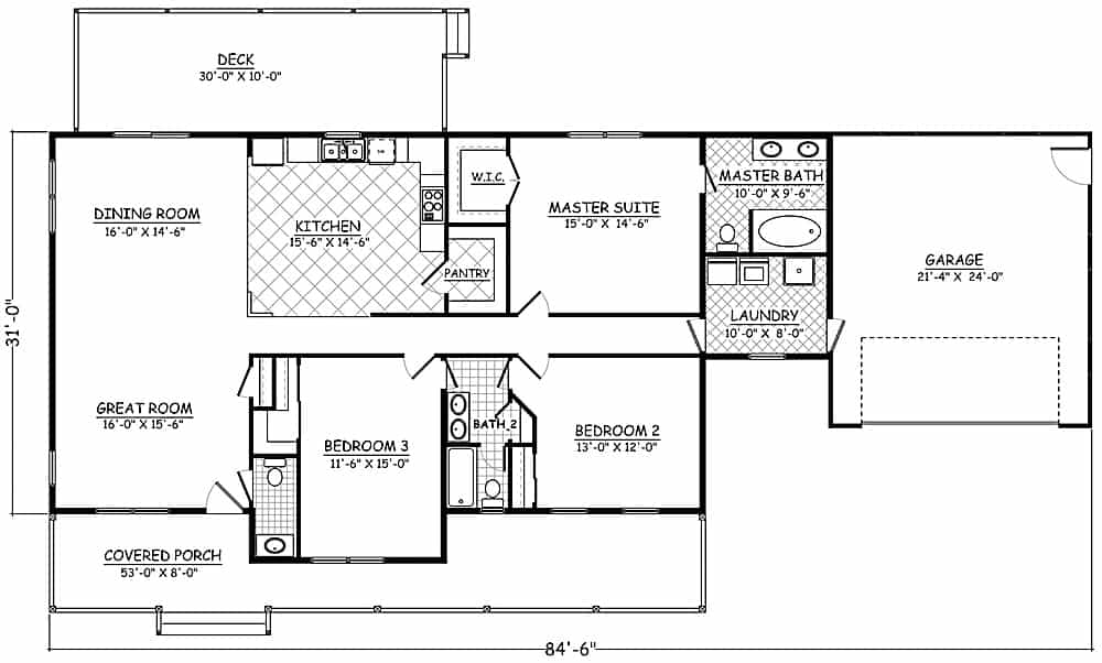
This desirable Country Farmhouse sytle home with Ranch design characteristics has a grand full-width front porch that creates an inviting entry to the spacious house. The house is perfect for entertaining or relaxing with an open and airy Great Room, dining area, and awesome kitchen with walk-in pantry. This inviting 1-story floor plan has 1904 square feet of living space and includes 3 bedrooms, 2 full bathrooms, and 1 half bath.
Estimate your costs based on your location and materials.
All sales of house plans, modifications, and other products found on this site are final. No refunds or exchanges can be given once your order has begun the fulfillment process. Please see our Policies for additional information.
All plans offered on ThePlanCollection.com are designed to conform to the local building codes when and where the original plan was drawn.
The homes as shown in photographs and renderings may differ from the actual blueprints. For more detailed information, please review the floor plan images herein carefully.
Estimate your costs based on your location and materials.

