Estimate your costs based on your location and materials.
Yes! This plan can be customized—contact us for a free quote.

Yes! This plan can be customized—contact us for a free quote.
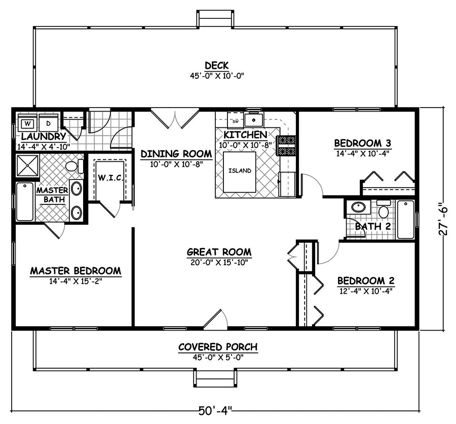
This attractive country-style ranch with Cape Cod elements enjoys a wide, front porch. The dormer windows provide for even more curb appeal. Step inside the front door into the spacious Great Room. The open floor plan design allows friends and family to take in the dining room with its double doors to the rear deck. The efficiently-designed kitchen is only steps away and includes a large island. Also at the rear of the home is the laundry room with a closet and a rear door to the deck -- ideal for removing coats and boots.
With a split bedroom layout, Bedroom #2 and # 3 are...
Estimate your costs based on your location and materials.
All sales of house plans, modifications, and other products found on this site are final. No refunds or exchanges can be given once your order has begun the fulfillment process. Please see our Policies for additional information.
All plans offered on ThePlanCollection.com are designed to conform to the local building codes when and where the original plan was drawn.
The homes as shown in photographs and renderings may differ from the actual blueprints. For more detailed information, please review the floor plan images herein carefully.
Estimate your costs based on your location and materials.





