Estimate your costs based on your location and materials.
Yes! This plan can be customized—contact us for a free quote.

Yes! This plan can be customized—contact us for a free quote.
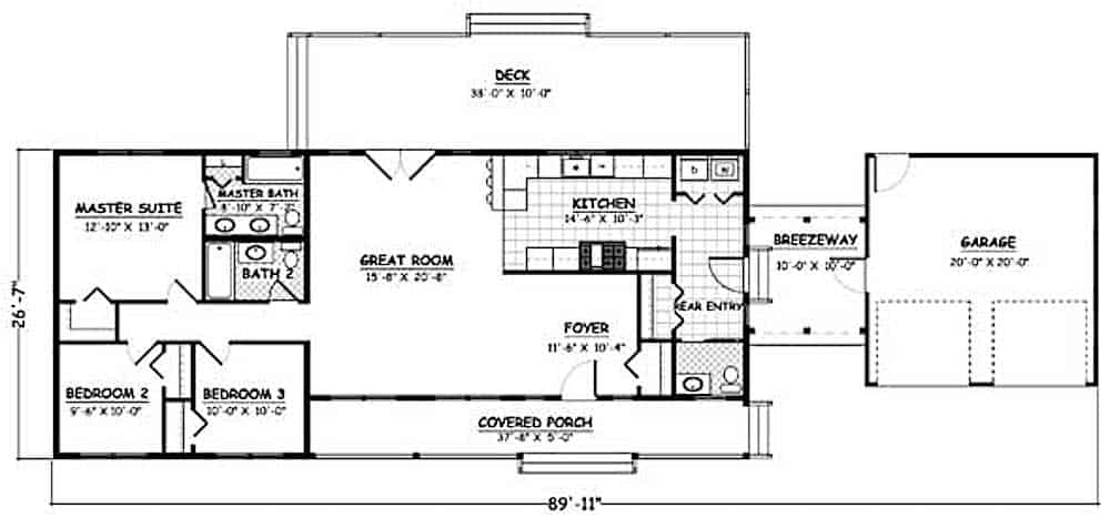
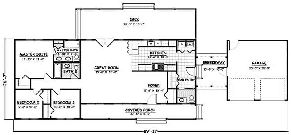
Looking for a cozy and spacious place to call your own? This warm and welcoming farmhouse style ranch is just what you're looking for! The wide, front porch immediately catches your eye. Inside, you’ll enjoy the well-lighted rooms with the home's many windows. A breezeway connects the main house to the 2-car garage. The remarkable 1-story floor plan has 1400 square feet of living space and includes 3 bedrooms and 2 full bathrooms.
Estimate your costs based on your location and materials.
All sales of house plans, modifications, and other products found on this site are final. No refunds or exchanges can be given once your order has begun the fulfillment process. Please see our Policies for additional information.
All plans offered on ThePlanCollection.com are designed to conform to the local building codes when and where the original plan was drawn.
The homes as shown in photographs and renderings may differ from the actual blueprints. For more detailed information, please review the floor plan images herein carefully.
Estimate your costs based on your location and materials.

