Estimate your costs based on your location and materials.
Yes! This plan can be customized—contact us for a free quote.

Yes! This plan can be customized—contact us for a free quote.
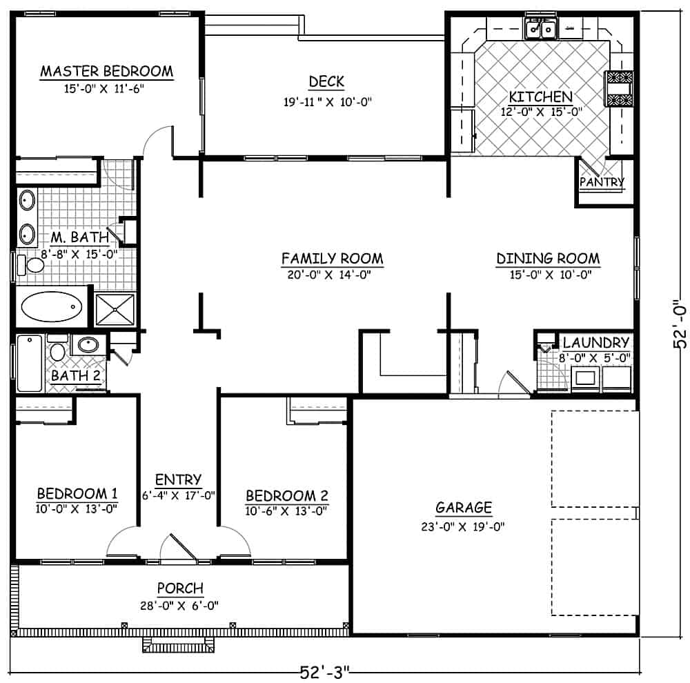
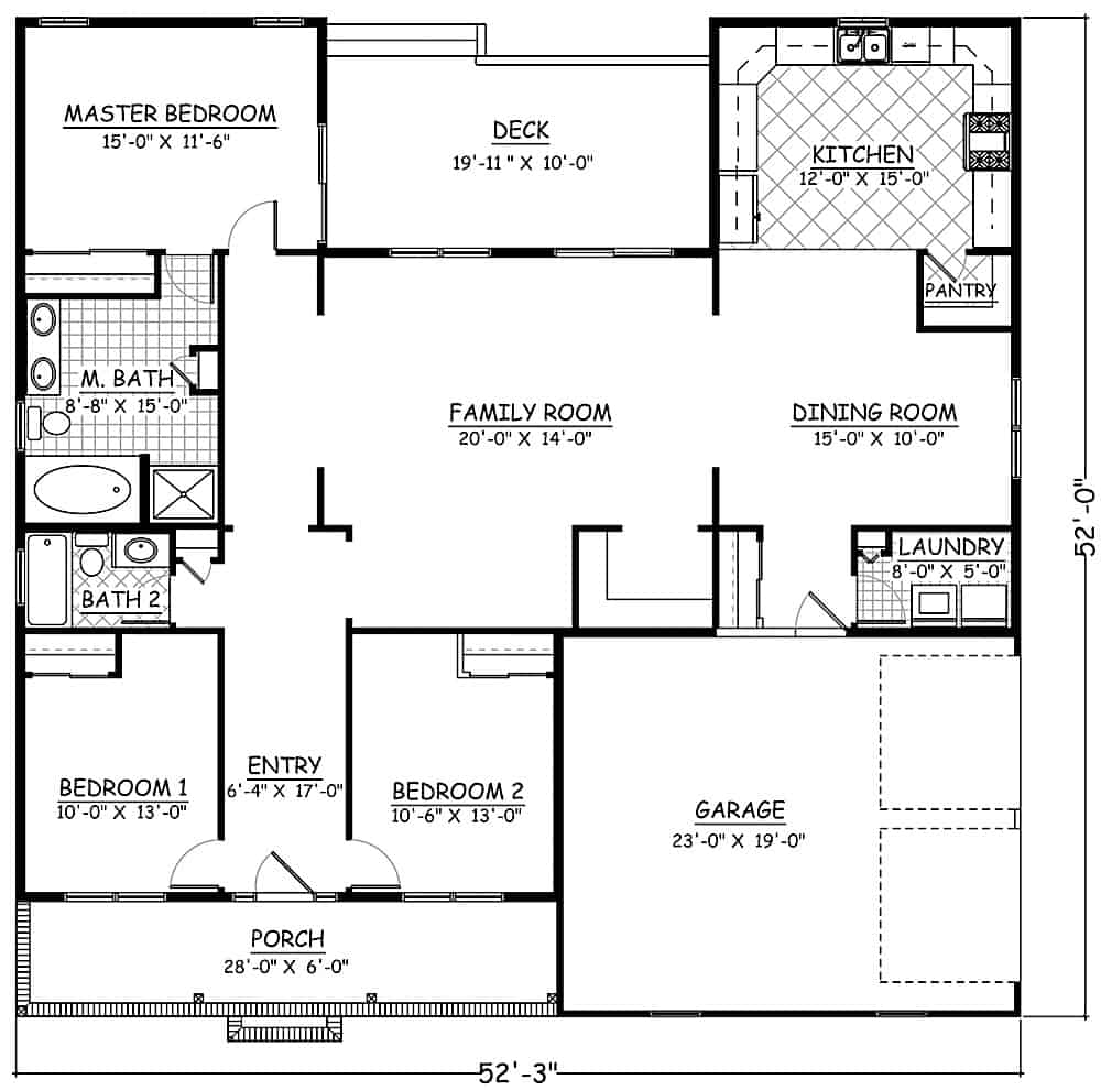
This Ranch house with Fsrmhouse style characteristics fits excellently on a corner lot with the front of the house facing the main road and the side with the car entrance facing the intersecting street. An impressive and great example of a simple but elegant, highly livable design. The front covered entry porch is given added charm with the turned columns adding a country touch to the home. The extraordinary 1-story floor plan has 1840 square feet of living space and includes 3 bedrooms and 2 bathrooms.
Estimate your costs based on your location and materials.
All sales of house plans, modifications, and other products found on this site are final. No refunds or exchanges can be given once your order has begun the fulfillment process. Please see our Policies for additional information.
All plans offered on ThePlanCollection.com are designed to conform to the local building codes when and where the original plan was drawn.
The homes as shown in photographs and renderings may differ from the actual blueprints. For more detailed information, please review the floor plan images herein carefully.
Estimate your costs based on your location and materials.

