Estimate your costs based on your location and materials.
Yes! This plan can be customized—contact us for a free quote.

Yes! This plan can be customized—contact us for a free quote.
Please Note! This designer does NOT ship paper copies to Canada. Please order your plans in electronic format (PDF or CAD)! USDA Approval is available for this plan. If interested, submit a modification request for a free quote. What is USDA Approval? Certification that a particular house plan meets the housing requirements of the US Department of Agriculture's Rural Housing Service. This is one of the requirements if you intend to apply for a loan through the Rural Housing Service.
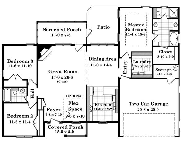
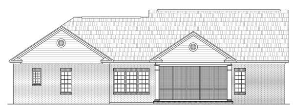
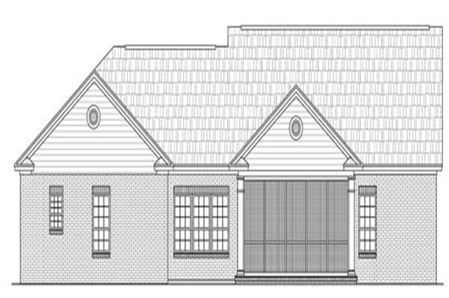
This beautiful home features an open living area plan and may be the answer to your family's needs. The isolated master suite includes a raised ceiling, oversized jet tub, separate shower and toilet compartment, large walk-in closet, and dual lavatories. The large utility/laundry includes plenty of space for folding and storing clothing and other goods. The expansive great room features the very popular gas log fireplace, and includes transoms above windows on the rear to allow for plenty of light to enter the room. This plan also features a screened porch, perfect for relaxing away...
Estimate your costs based on your location and materials.
All sales of house plans, modifications, and other products found on this site are final. No refunds or exchanges can be given once your order has begun the fulfillment process. Please see our Policies for additional information.
All plans offered on ThePlanCollection.com are designed to conform to the local building codes when and where the original plan was drawn.
The homes as shown in photographs and renderings may differ from the actual blueprints. For more detailed information, please review the floor plan images herein carefully.
Estimate your costs based on your location and materials.


