Estimate your costs based on your location and materials.
Yes! This plan can be customized—contact us for a free quote.

Yes! This plan can be customized—contact us for a free quote.
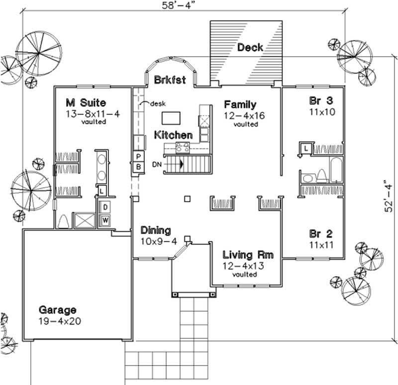
This country home uses striking gables, columns and arches to give this one-story home high style. The vaulted foyer is brightened by a half-round window that echoes the lines of the entryway. To the left, columns and an angled wall of windows outline the formal dining room. To the right, the vaulted living room features a picture window that is topped by an artistic transom. The living room flows into the vaulted family room, where sliding glass doors open to a backyard deck. The roomy kitchen boasts ample counter and closet space, a built-in desk and a center work island. The adjoining...
Estimate your costs based on your location and materials.
All sales of house plans, modifications, and other products found on this site are final. No refunds or exchanges can be given once your order has begun the fulfillment process. Please see our Policies for additional information.
All plans offered on ThePlanCollection.com are designed to conform to the local building codes when and where the original plan was drawn.
The homes as shown in photographs and renderings may differ from the actual blueprints. For more detailed information, please review the floor plan images herein carefully.
Estimate your costs based on your location and materials.

