Estimate your costs based on your location and materials.
Yes! This plan can be customized—contact us for a free quote.

Yes! This plan can be customized—contact us for a free quote.
NO Material lists.
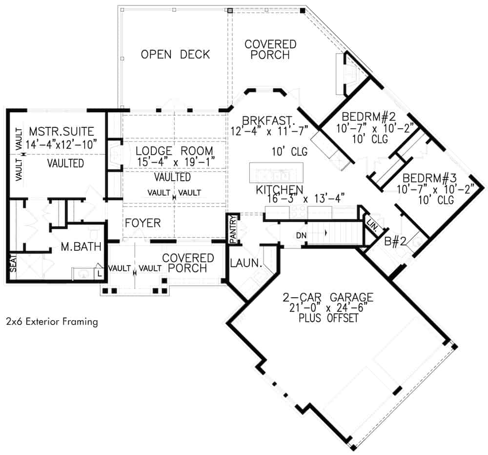
You’ll love the simple and sleek design of this Cottage style Ranch home with a vaulted ceilings, open concept floor plan, and covered front porch. The house's covered porches and deck will allow you to enjoy outdoor activities and observe nature while being protected from the discomfort due to inclement weather outside. This 1-story floor plan has 1515 square feet of heated-cooled living space and includes 3 bedrooms and 2 full bathrooms.
Estimate your costs based on your location and materials.
All sales of house plans, modifications, and other products found on this site are final. No refunds or exchanges can be given once your order has begun the fulfillment process. Please see our Policies for additional information.
All plans offered on ThePlanCollection.com are designed to conform to the local building codes when and where the original plan was drawn.
The homes as shown in photographs and renderings may differ from the actual blueprints. For more detailed information, please review the floor plan images herein carefully.
Estimate your costs based on your location and materials.



