Estimate your costs based on your location and materials.
Yes! This plan can be customized—contact us for a free quote.


Yes! This plan can be customized—contact us for a free quote.
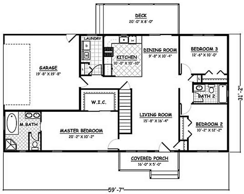
Simple and understated in design in the spirit of form follows function, this wonderful Ranch style house has turned columns at the entry porch that add a country feel to the home. The straight rectangular walls and unadorned gable roof with shed extension to cover the front porch make the house very easy and affordable to build. The inviting 1-story floor plan has 1453 square feet of living space and includes 3 bedrooms and 2 full bathrooms.
Estimate your costs based on your location and materials.
All sales of house plans, modifications, and other products found on this site are final. No refunds or exchanges can be given once your order has begun the fulfillment process. Please see our Policies for additional information.
All plans offered on ThePlanCollection.com are designed to conform to the local building codes when and where the original plan was drawn.
The homes as shown in photographs and renderings may differ from the actual blueprints. For more detailed information, please review the floor plan images herein carefully.
Estimate your costs based on your location and materials.


