Estimate your costs based on your location and materials.
Yes! This plan can be customized—contact us for a free quote.

Yes! This plan can be customized—contact us for a free quote.
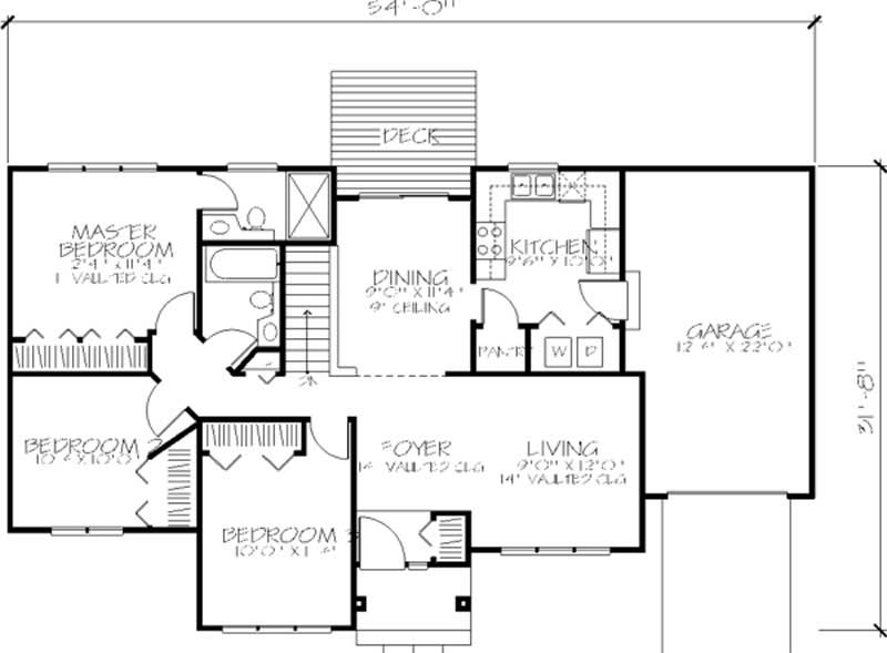
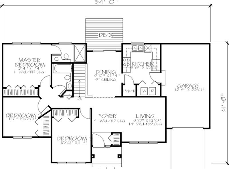
This ranch keeps costs down without sacrificing aethestics. The entry is brightened by clerestory windows, while the vaulted living room features floor-to-ceiling windows. The dining room has sliding glass doors opening to a backyard deck. The roomy U-shaped kitchen includes a space-saving laundry closet and a pantry. The vaulted master bedroom offers a wonderful view of the backyard. The private master bath is adjacent to the main bath for more cost-effective plumbing runs. Two more bedrooms round out the main floor. The full basement can be finished to provide more living space.
Estimate your costs based on your location and materials.
All sales of house plans, modifications, and other products found on this site are final. No refunds or exchanges can be given once your order has begun the fulfillment process. Please see our Policies for additional information.
All plans offered on ThePlanCollection.com are designed to conform to the local building codes when and where the original plan was drawn.
The homes as shown in photographs and renderings may differ from the actual blueprints. For more detailed information, please review the floor plan images herein carefully.
Estimate your costs based on your location and materials.

