Estimate your costs based on your location and materials.
Yes! This plan can be customized—contact us for a free quote.


Yes! This plan can be customized—contact us for a free quote.
PLEASE NOTE! The CAD - Unlimited package is NOT an unlimited license - it is a license to build up to 5 homes.
ATTENTION! Printed sets can ONLY be sent via ground shipping. NO priority or express shipping is available.
ATTENTION! Printed sets can ONLY be sent by ground - NO priority or express shipping on printed sets!
Please Note: The exterior framing is ICF. The exterior finish is vertical siding.
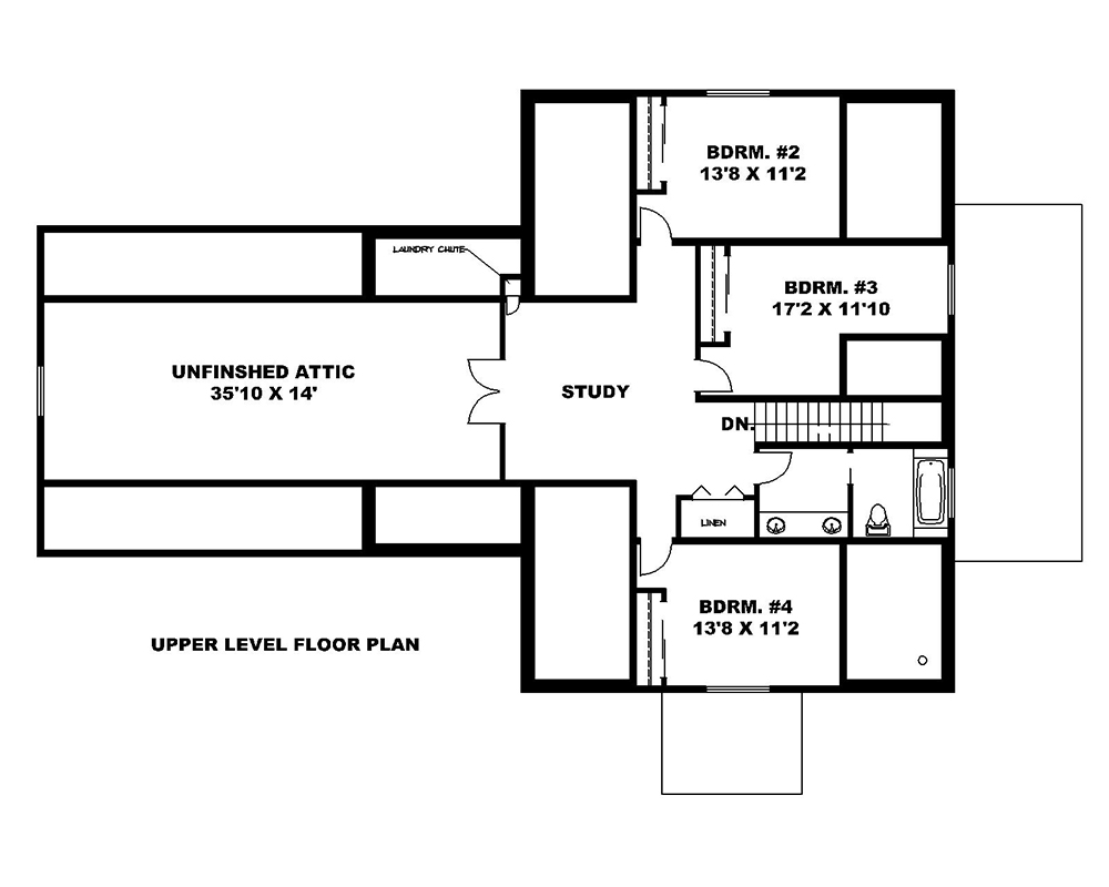
This attractive Barn Style style home truly has the feeling of living in the country. The 2-story home has 2875 square feet of living space and 4 bedrooms (office could be a 5th bedroom) - plenty of room for a growing family. Step inside from the front porch and find yourself in an open floor plan space combining the great room, dining area, and kitchen. A wood-burning stove in the corner of the great room completes the space. The kitchen deserves mention for its island with an eating bar and walk-in pantry. At the rear of the home is the main floor master suite with a bathroom...
Estimate your costs based on your location and materials.
All sales of house plans, modifications, and other products found on this site are final. No refunds or exchanges can be given once your order has begun the fulfillment process. Please see our Policies for additional information.
All plans offered on ThePlanCollection.com are designed to conform to the local building codes when and where the original plan was drawn.
The homes as shown in photographs and renderings may differ from the actual blueprints. For more detailed information, please review the floor plan images herein carefully.
Estimate your costs based on your location and materials.






