Estimate your costs based on your location and materials.
Yes! This plan can be customized—contact us for a free quote.


Yes! This plan can be customized—contact us for a free quote.
PLEASE NOTE! The CAD - Unlimited package is NOT an unlimited license - it is a license to build up to 5 homes. ATTENTION! Printed sets can ONLY be sent via ground shipping. NO priority or express shipping is available. ATTENTION! Printed sets can ONLY be sent by ground - NO priority or express shipping on printed sets!
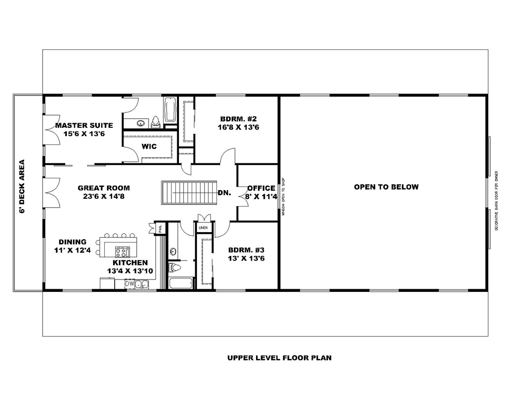
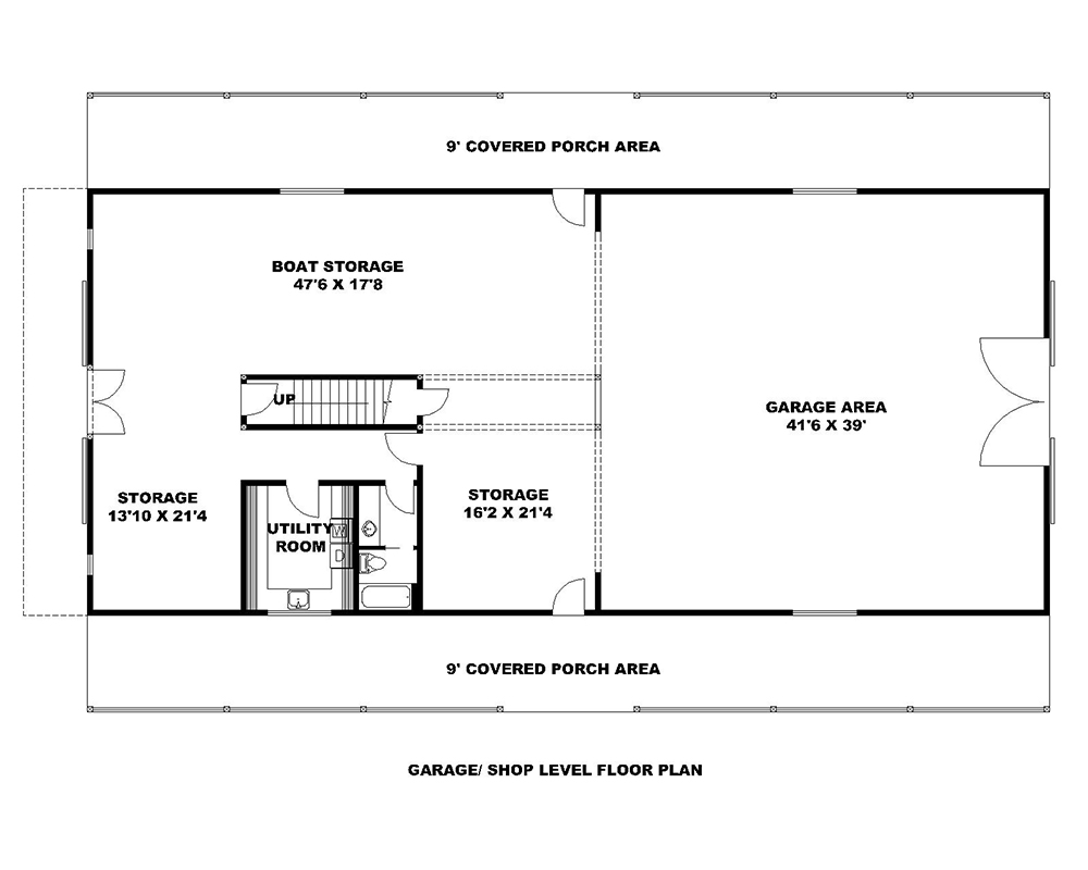
Looking for the perfect blend of country living and modern convenience? Look no further than this barndominium! For starters, the 1920 square foot living area boasts an open floor plan, three spacious bedrooms, and a home office. The luxurious master suite enjoys direct access to the deck and is complete with a walk-in closet and ensuite bath. But let's not forget about what makes this an enviable barndominium — that double-height garage space, perfect as a workshop, a studio, or just a place to park your vehicles. Plus, the boat storage is an added...
Estimate your costs based on your location and materials.
All sales of house plans, modifications, and other products found on this site are final. No refunds or exchanges can be given once your order has begun the fulfillment process. Please see our Policies for additional information.
All plans offered on ThePlanCollection.com are designed to conform to the local building codes when and where the original plan was drawn.
The homes as shown in photographs and renderings may differ from the actual blueprints. For more detailed information, please review the floor plan images herein carefully.
Estimate your costs based on your location and materials.





