Estimate your costs based on your location and materials.
Yes! This plan can be customized—contact us for a free quote.

Yes! This plan can be customized—contact us for a free quote.
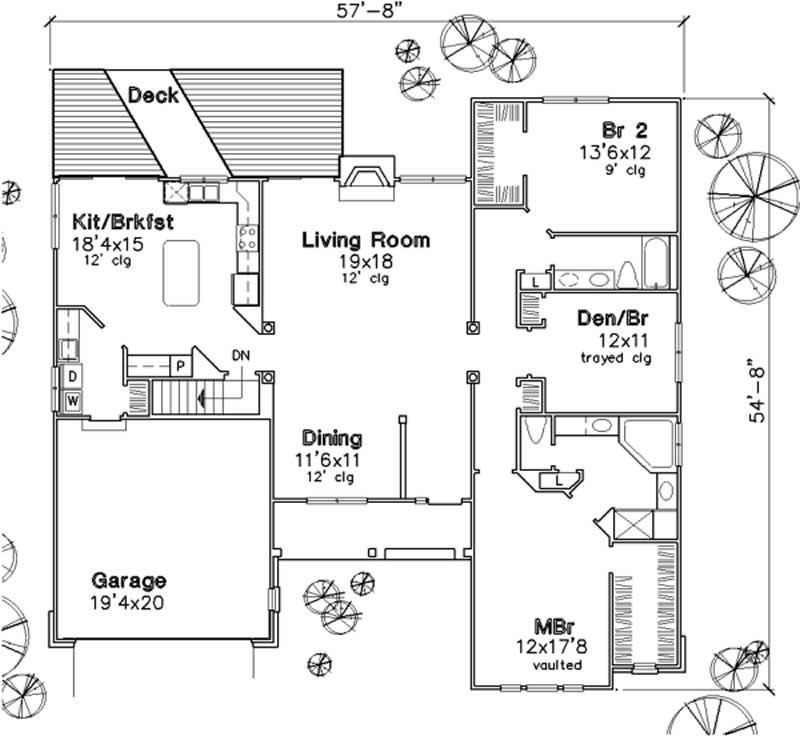
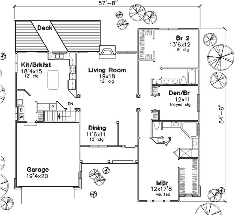
This ranch usesdecorative dormers, a railed porch and a generous country-style kitchen to give this modern home a traditional feel. Soaring 12-ft.-high ceilings add volume to the expansive combined area of the foyer, living room and dining area. The living room fireplace is flanked by French doors and high transom windows, creating a virtual wall of glass. Elegant columns adorn the entrances to the bedroom hallway and to the exciting kitchen and nook. The roomy island kitchen features a breakfast nook nestled in a panoramic corner of windows that nearly stretch from the floor to the...
Estimate your costs based on your location and materials.
All sales of house plans, modifications, and other products found on this site are final. No refunds or exchanges can be given once your order has begun the fulfillment process. Please see our Policies for additional information.
All plans offered on ThePlanCollection.com are designed to conform to the local building codes when and where the original plan was drawn.
The homes as shown in photographs and renderings may differ from the actual blueprints. For more detailed information, please review the floor plan images herein carefully.
Estimate your costs based on your location and materials.

