Estimate your costs based on your location and materials.
Yes! This plan can be customized—contact us for a free quote.

Yes! This plan can be customized—contact us for a free quote.
The plans by this designer do NOT include framing. PLEASE NOTE: An Unlimited Use License is available for purchase through the designer BUT YOU MUST purchase a CAD package!
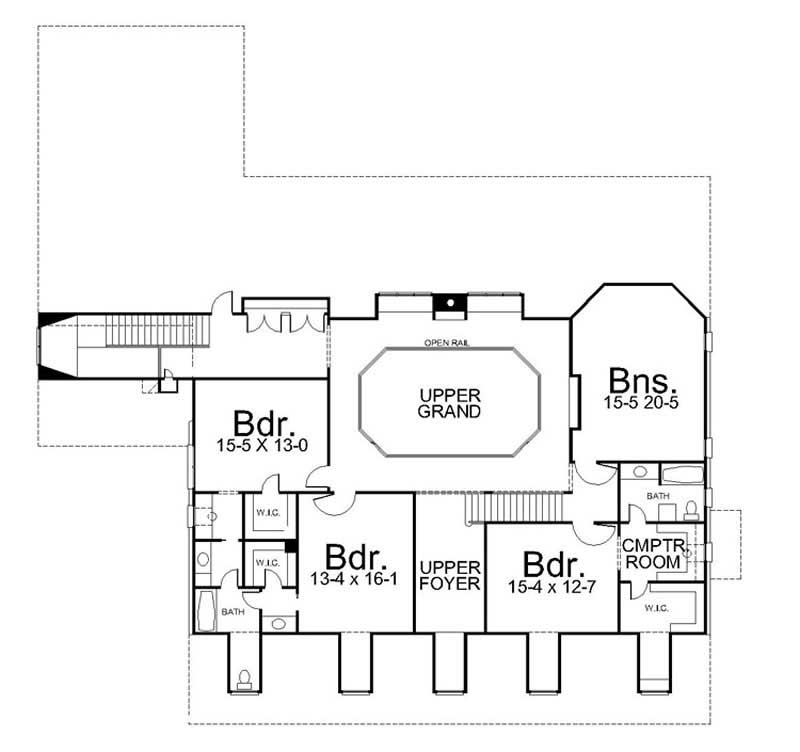
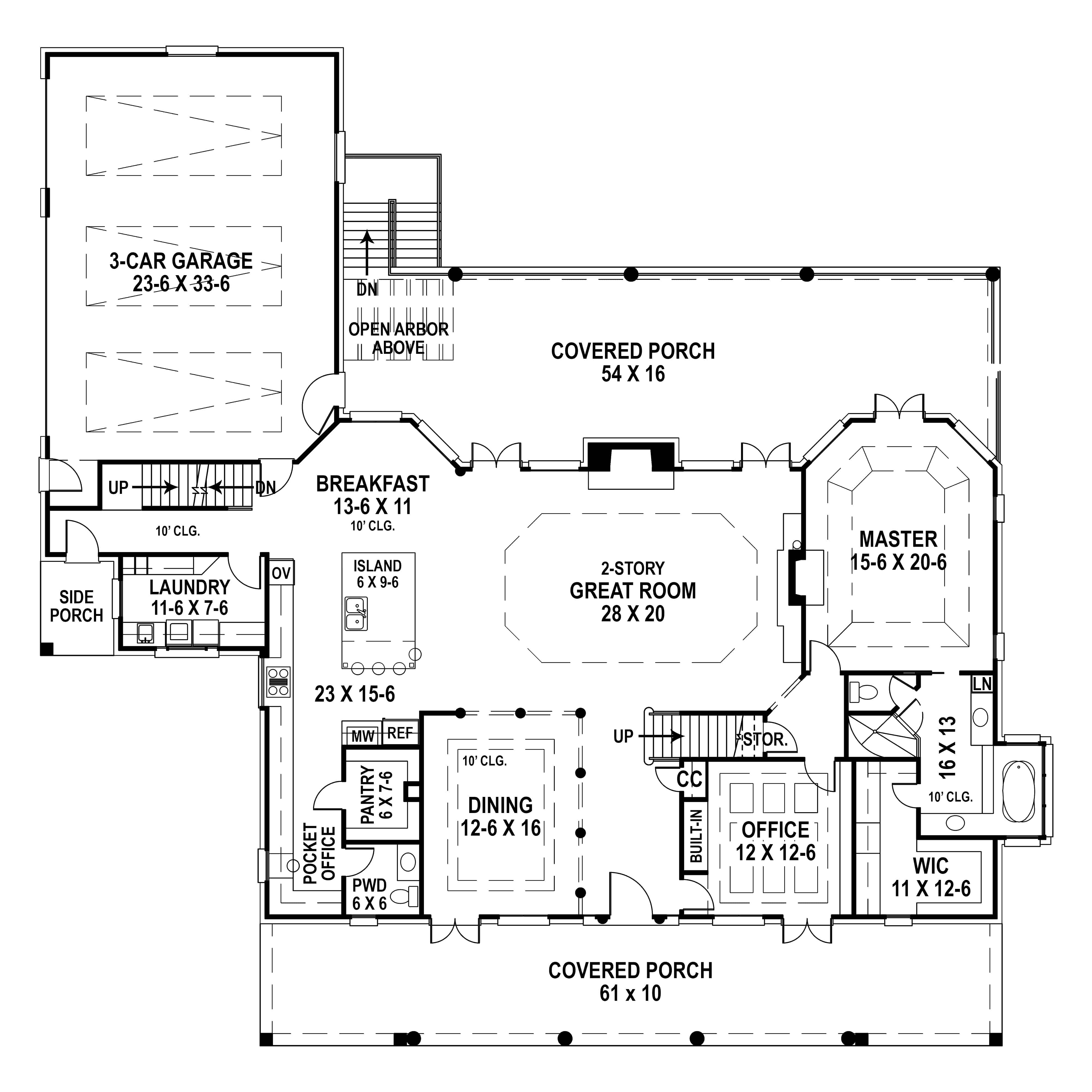
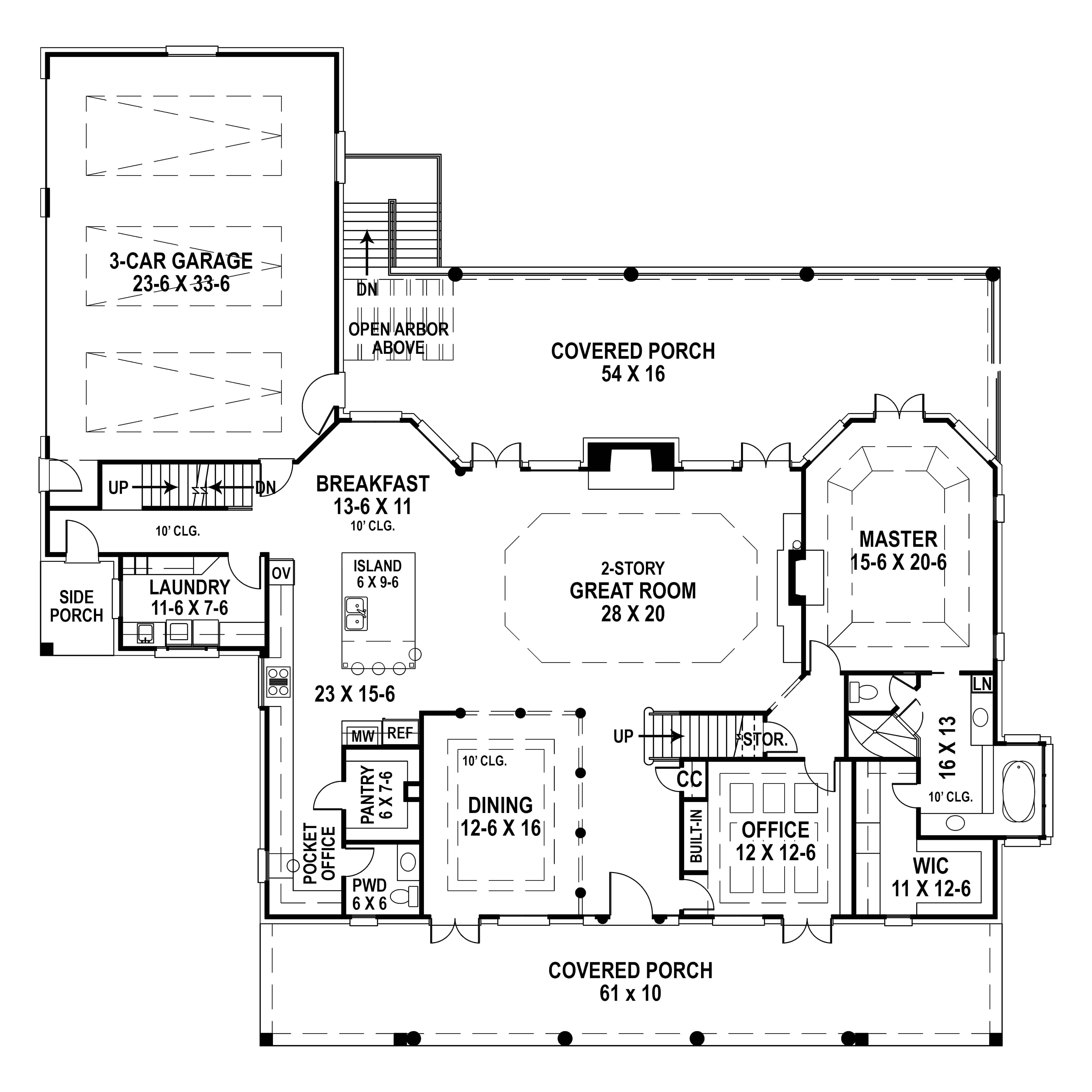
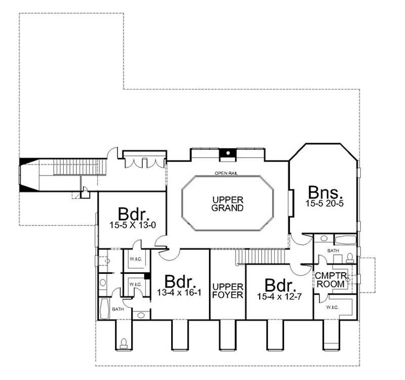
This home has a great covered porch, one in the front and back. The grand room kitchen and breakfast nook are all open to each other which gives you a lot of room for entertaining and the dining room is close by as well for those special occasions. The master bedroom has a fireplace and entry out onto the porch, it is a perfect room for the man of the house with a great bathroom and large walk-in-closet. Upstairs there is three bedrooms a bonus room and computer room for those kids in school to easily do homework and reports.
Estimate your costs based on your location and materials.
All sales of house plans, modifications, and other products found on this site are final. No refunds or exchanges can be given once your order has begun the fulfillment process. Please see our Policies for additional information.
All plans offered on ThePlanCollection.com are designed to conform to the local building codes when and where the original plan was drawn.
The homes as shown in photographs and renderings may differ from the actual blueprints. For more detailed information, please review the floor plan images herein carefully.
Estimate your costs based on your location and materials.
